Wohnung mieten - Grand-Rue 82, 1180 Rolle
Warum Sie diese Immobilie lieben werden
Geräumige offene Küche
Gemütlicher Mezzaninbereich
Ideale Lage am See
Besichtigung vereinbaren
Besichtigung buchen
Charmante Unterkunft im Herzen der Grand-Rue und nur einen Steinwurf vom See entfernt
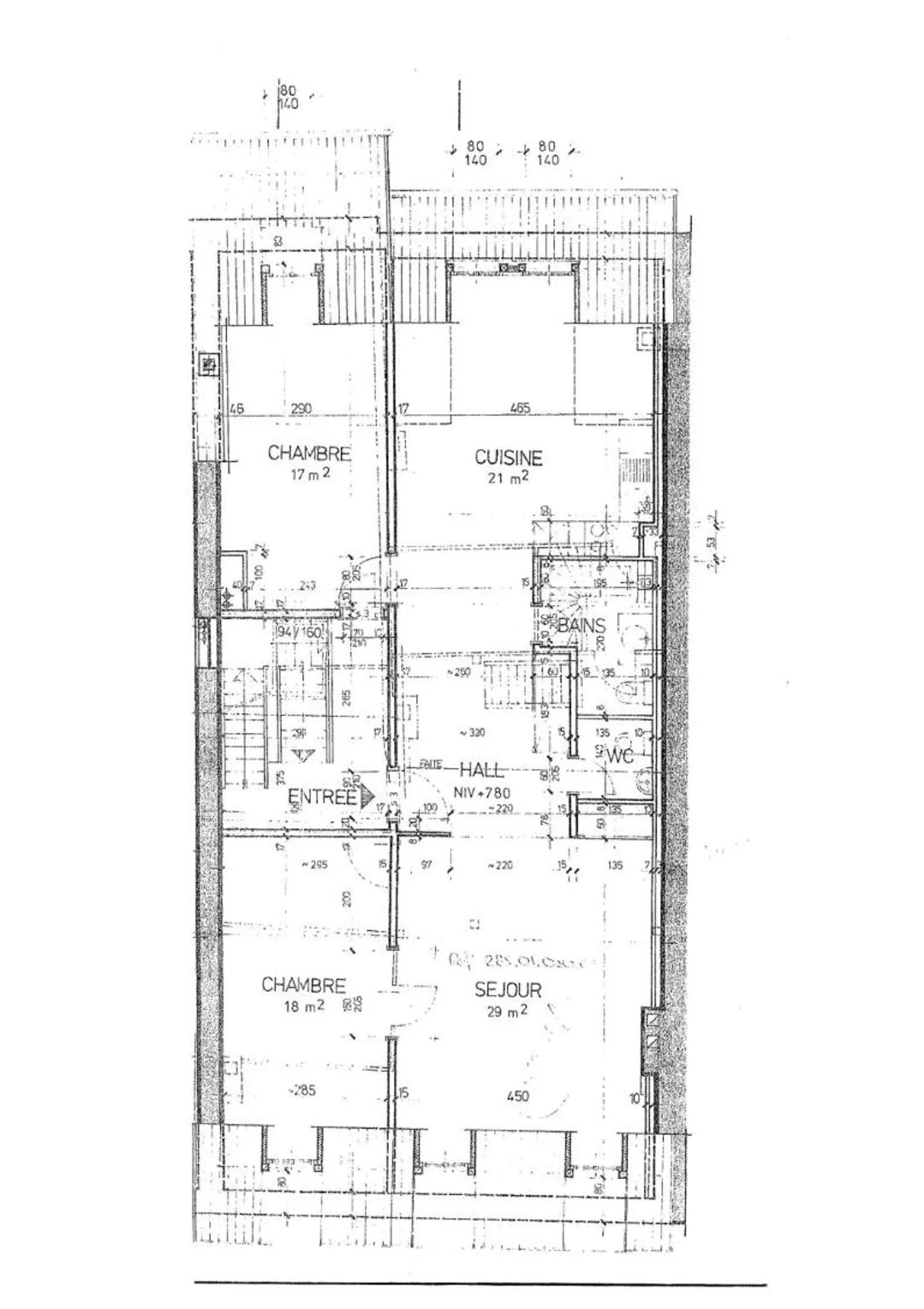
Diese Dachgeschosswohnung von etwa 100 m2 wird Sie sowohl durch ihre ideale Lage als auch durch ihre geräumige Fläche begeistern. Sie umfasst:
- Offene Küche, die zum Wohnzimmer führt;
- Zwei Schlafzimmer;
- Badezimmer/WC;
- Mezzanin.
Das Gebäude hat keinen Keller mit den Wohnungen. Renovierungsarbeiten sind vor der Wiedervermietung der Unterkunft geplant.
Verfügbarkeit: Nach Vereinbarung.
Nettomiete: CHF 2.590,00
Vorauszahlung der Nebenkosten: CHF 150,00
Bei Interesse zögern Sie nicht, uns für eine...
Kostenaufstellung
- Nettokosten
- CHF 2'740
- Zusätzliche Kosten
- CHF 150
- Gesamtkosten
- CHF 2'740
Immobiliendetails
- Verfügbar ab
- 01.01.1970
- Zimmer
- 3.5



