Wohnung mieten - Dorf 803, 9427 Wolfhalden
Warum Sie diese Immobilie lieben werden
Heller Wintergartenbereich
Moderne Küche mit Geräten
Grosser privater Gartenbereich
Besichtigung vereinbaren
Besichtigung mit Bitte buchen
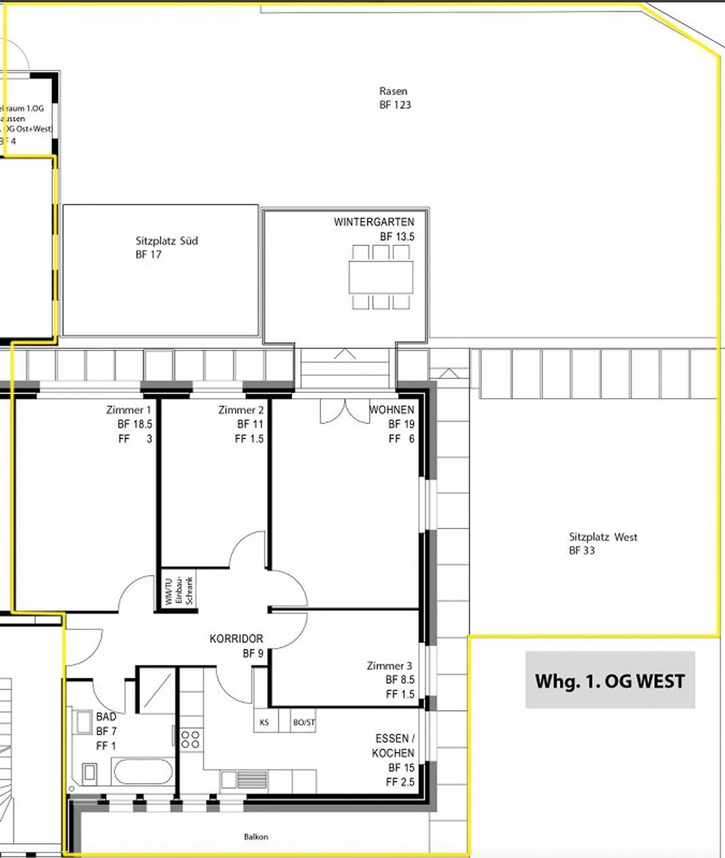
4.5 Zimmer Wohnung mit Wintergarten & grossem Aussenbereich
Wohnung:
- Wohnung mit Ausbau im Eigentumsstandard
- grosse Einbauküche (mit Backofen & Steamer, Geschirrspüler, Kühlschrank mit Gefrierschubladen, Kochfeld, Dampfabzug, Putzschrank, etc.) mit angrenzendem Essbereich
- renoviertes Badezimmer mit Badewanne, begehbarer Dusche, Handtuchradiator, Einbauradio und Einbauschränken
- grosszügiger Wohnbereich mit angrenzendem hellem Wintergarten (nicht beheizt)
- renovierter Korridor mit Video-Gegensprechstelle, Einbauleuchten und eigene WM/TU mit sch...
Kostenaufstellung
- Nettokosten
- CHF 1’690
- Zusätzliche Kosten
- CHF 190
- Gesamtkosten
- CHF 1’690
Immobiliendetails
- Verfügbar ab
- Nach Vereinbarung
- Zimmer
- 4.5
- Baujahr
- 1961
- Renovierungsjahr
- 2022
- Wohnfläche
- 102.5 m²
- Etage
- 1.
- Geschosse
- 4



