Studio mieten - Rue Des Epancheurs 8, 2012 Auvernier
Warum Sie diese Immobilie lieben werden
Ruhige Wohngegend
Nahe öffentlicher Verkehrsmittel
Sonnige und friedliche Lage
Besichtigung vereinbaren
Besichtigung mit gpc buchen
Rue des Epancheurs 8, Auvernier - Studio zur Miete
Rue des Epancheurs 8, Auvernier – Studio zur Miete ab dem 8. Juli 2026
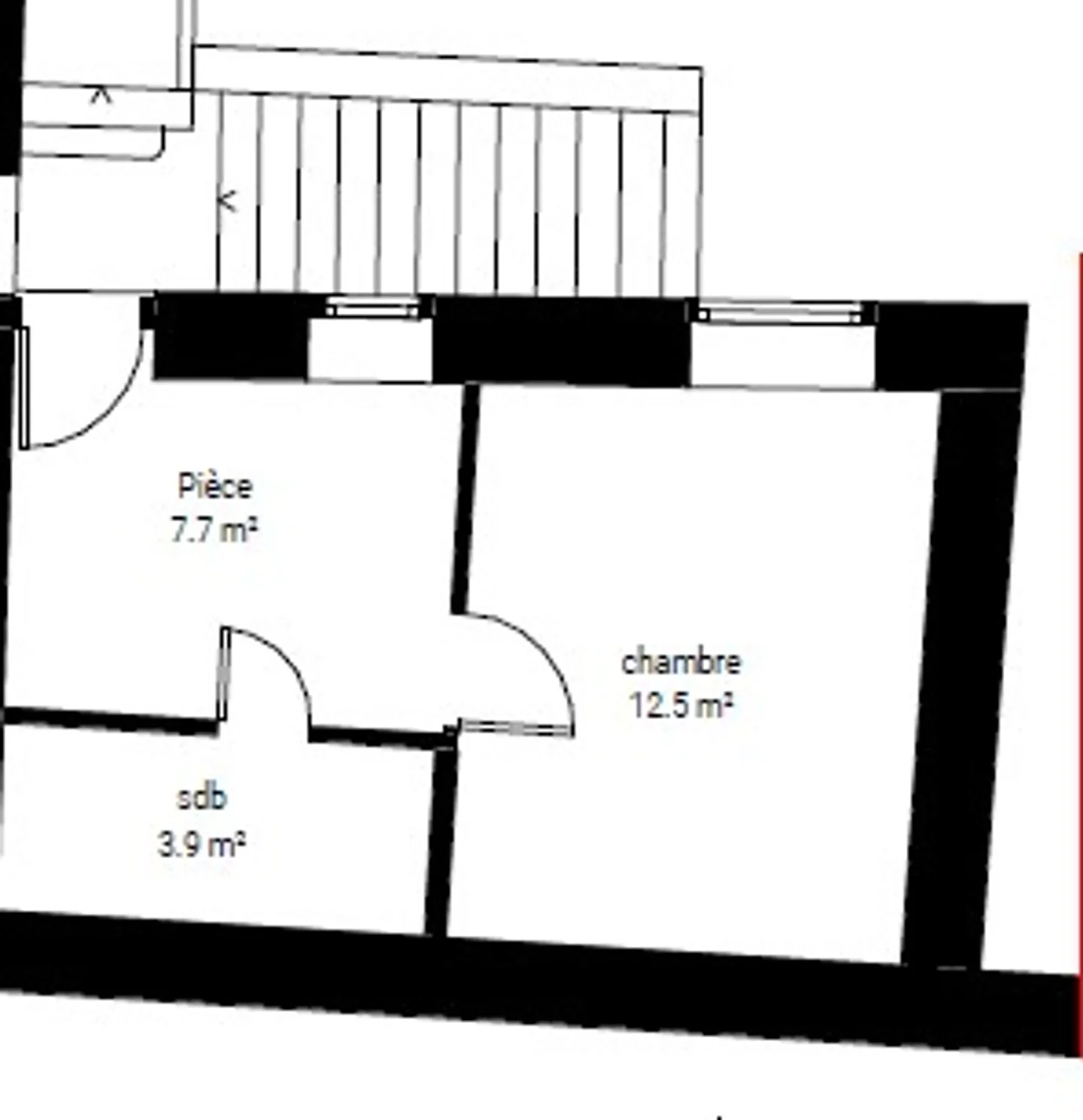
Entdecken Sie dieses charmante Studio im 1. Stock in der Rue des Epancheurs 8 in Milvignes. Diese Wohnung bietet ein ruhiges Wohnambiente in einer friedlichen Umgebung, ideal für eine einzelne Person oder ein Paar.
Die Wohnung profitiert von einer bevorzugten Lage mit einfacher Anbindung an die öffentlichen Verkehrsmittel. Der Bahnhof Auvernier Littorail ist nur 3 Minuten zu Fuß entfernt, während die Bushaltestelle Pacotte in 5...
Kostenaufstellung
- Nettokosten
- CHF 839
- Zusätzliche Kosten
- CHF 89
- Gesamtkosten
- CHF 839
Immobiliendetails
- Verfügbar ab
- 08.07.2026
- Zimmer
- 1
- Etage
- 1.




