Wohnung mieten - Brunnhaldenstrasse 8, 9410 Heiden
Warum Sie diese Immobilie lieben werden
Hochwertiger Eichenparkettboden
Geräumiger Wintergarten
Energieeffizienter Minergie-Standard
Besichtigung vereinbaren
Besichtigung mit Stadler buchen
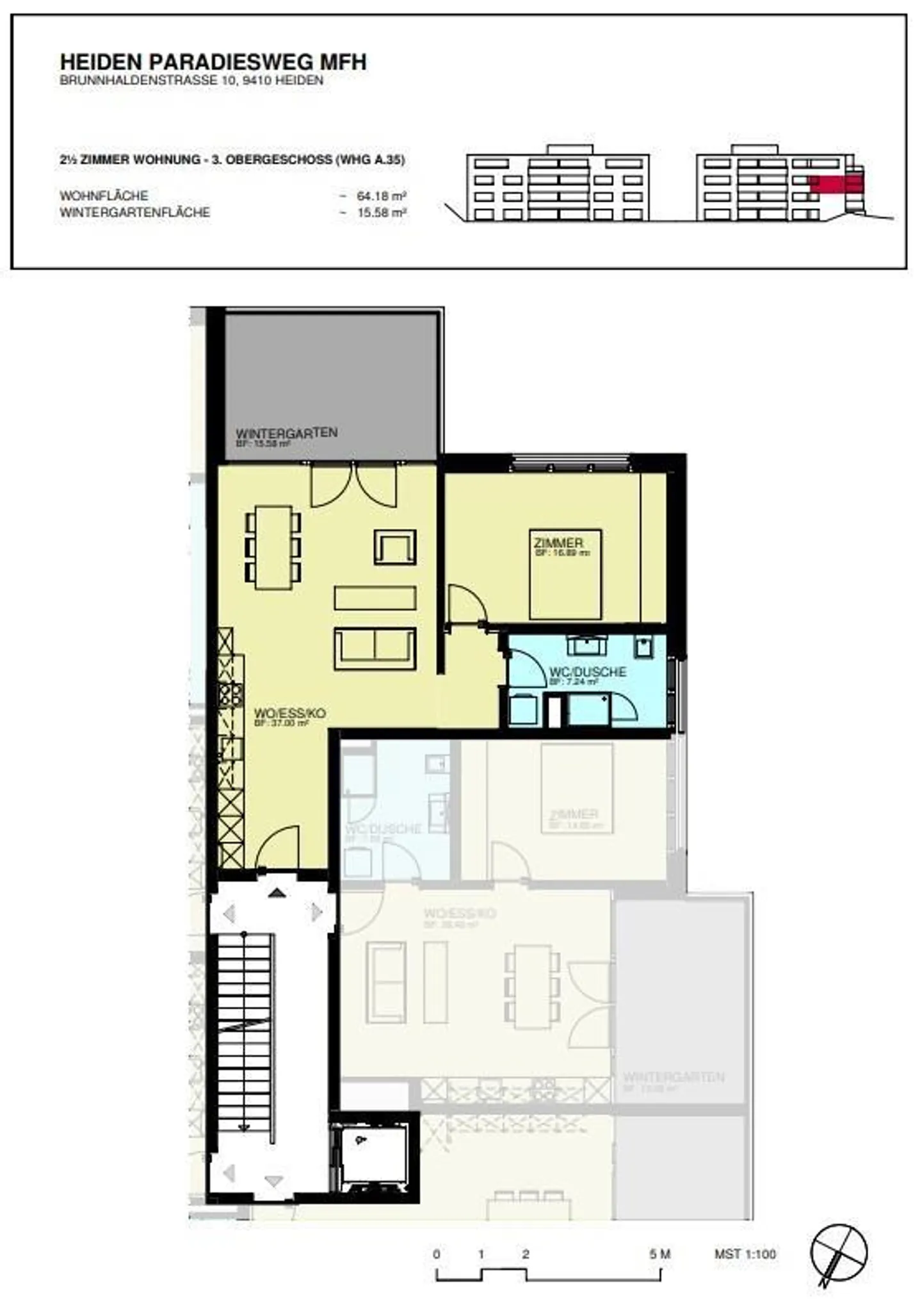
Ruhige moderne 2 1/2 zi in zentrumsnähe
An der Brunnhaldenstrasse 8 & 10 wurden im Frühjahr 2016 hochwertige Mietwohnungen an ruhiger Lage mit wunderbarer Weitsicht fertig gestellt. Die neue Wohnüberbauung liegt leicht nordöstlich vom Dorfkern in unmittelbarer Nähe zum Zentrum von Heiden mit sehr naher Anbindung an den öffentlichen Verkehr.
Im Vordergrund stehen ein grosser Wohnkomfort (Minergie-Standard) mit attraktiven Grundrisslösungen, modernen Materialien und einem niedrigen Energieverbrauch.
Im Innenausbau der Wohnung wurde be...
Kostenaufstellung
- Nettokosten
- CHF 1’490
- Zusätzliche Kosten
- CHF 150
- Gesamtkosten
- CHF 1’490
Immobiliendetails
- Verfügbar ab
- Nach Vereinbarung
- Zimmer
- 2.5
- Baujahr
- 2016
- Wohnfläche
- 64 m²
- Etage
- 3.
- Geschosse
- 4



