Wohnung mieten - Leutschenbachstrasse 77, 8050 Zürich
Warum Sie diese Immobilie lieben werden
Ruhige Lage am Leutschenpark
Hochwertiger Innenausbau
Komfortlüftungssystem
Besichtigung vereinbaren
Besichtigung mit Laureta buchen
Urbanes wohnen in zürich
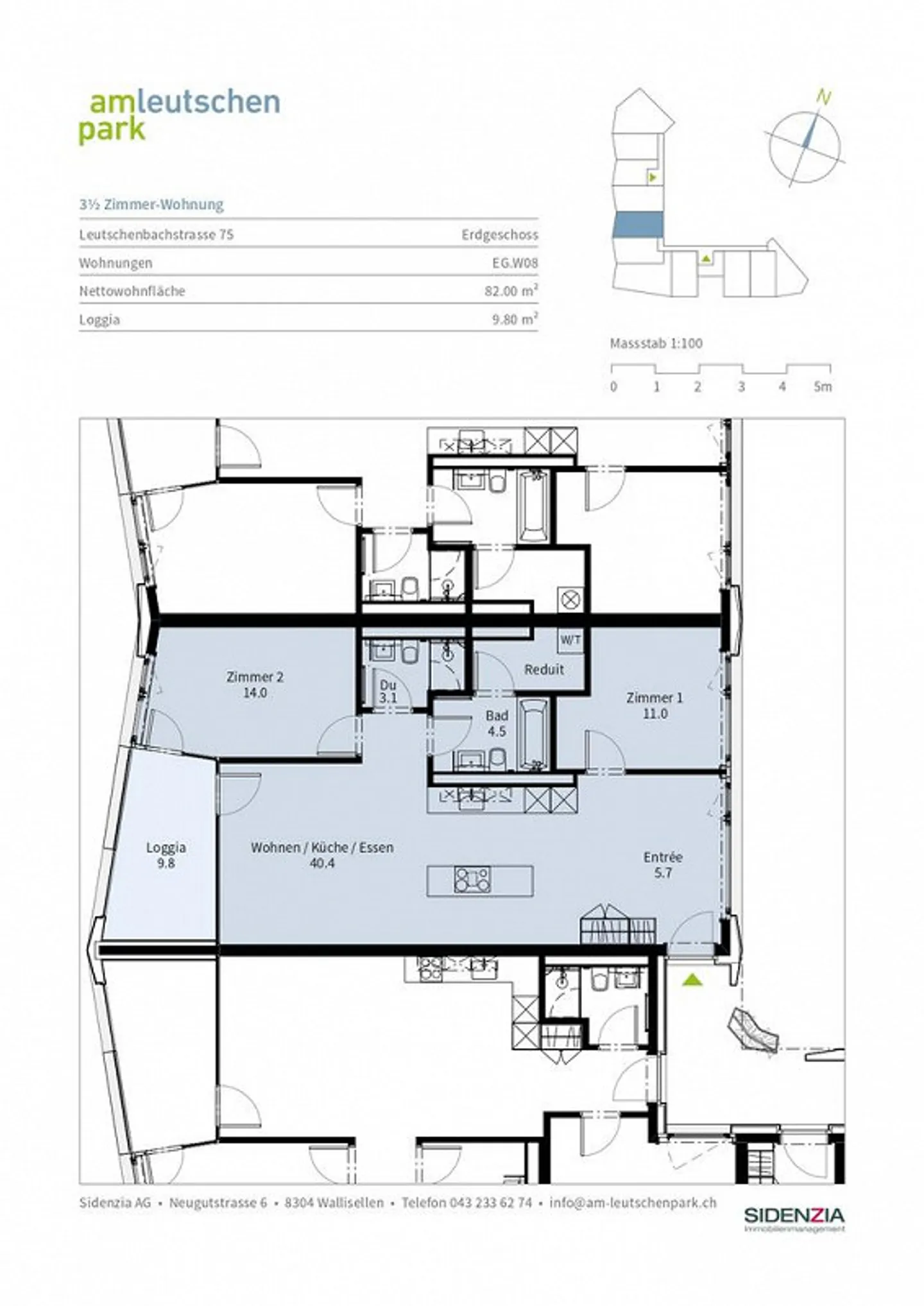
Wir vermieten per 01.01.2026 an der Leutschenbachstrasse 77 in Zürich eine wunderschöne 3.5 Zimmerwohnung im EG mit ansprechendem Grundriss und hochwertigem Innenausbau.
Folgende Vorzüge erwarten Sie:
- ruhige Wohnlage direkt am Leutschenpark
- Komfortlüftung mit Minergiestandard
- hochwertiger Innenausbau
- Reduit mit Waschturm
- Einbaugeräte der neusten Generation
- separates WC
- Einstellplatz für CHF 235.00 / Monat dazu gemietet werden
Haben wir Ihr Interesse geweckt? Wir freuen uns auf Ihre Kontakta...
Kostenaufstellung
- Nettokosten
- CHF 2’980
- Zusätzliche Kosten
- CHF 240
- Gesamtkosten
- CHF 2’980
Immobiliendetails
- Verfügbar ab
- Nach Vereinbarung
- Zimmer
- 3.5
- Baujahr
- 2022
- Wohnfläche
- 82 m²
- Etage
- EG



