Maisonette mieten - Lyss-Strasse 75, 2560 Nidau
Warum Sie diese Immobilie lieben werden
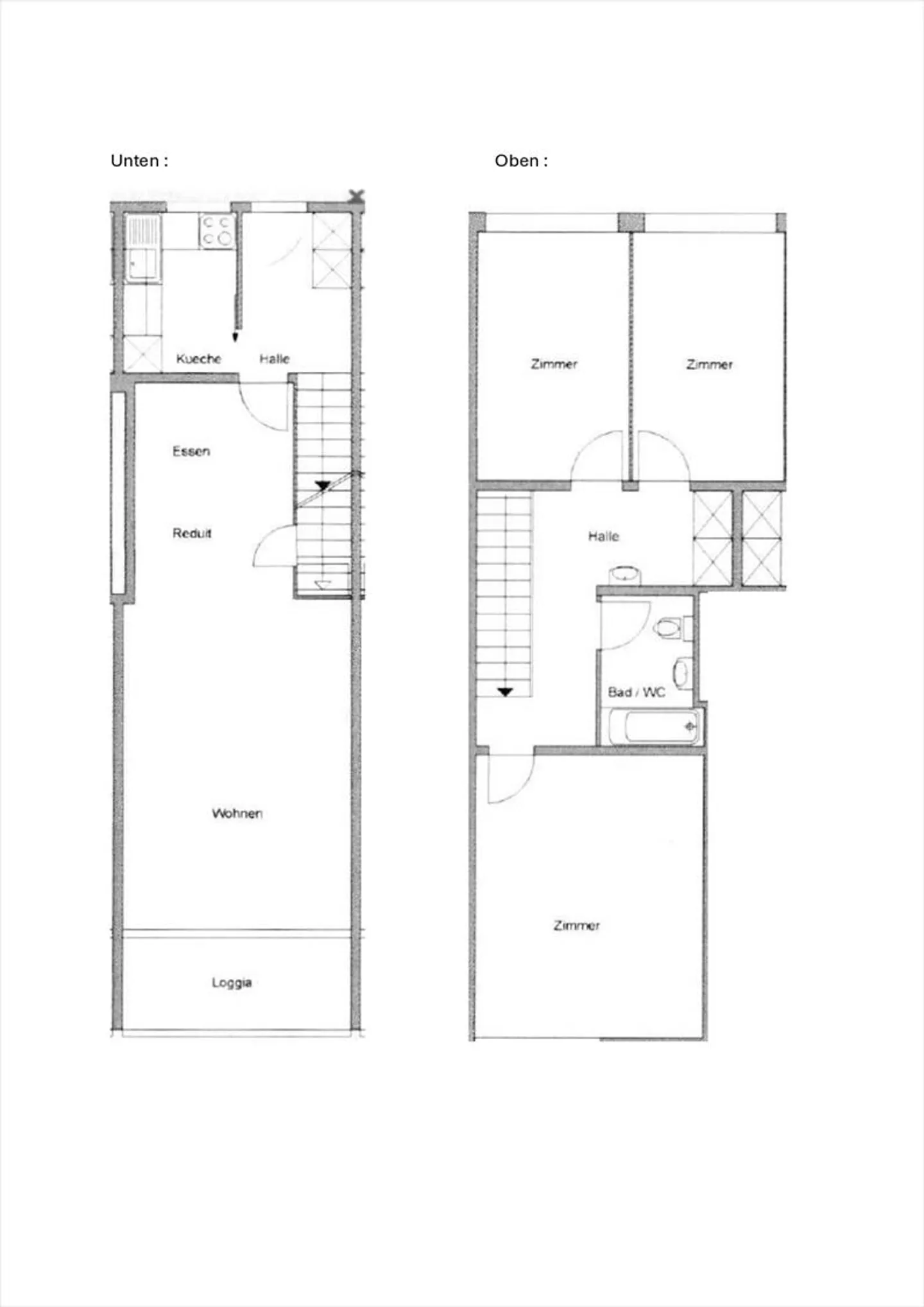
Grosszügige Maisonette-Wohnung
Wohnzimmer mit Loggia
Nähe ÖV und Einkauf
Besichtigung vereinbaren
Besichtigung mit Merse buchen
Duplex 4.5 zimmer
Zu vermieten: Schönes Duplex-Apartment mit 4.5 Zimmern in Nidau
Im 3. Stock eines Wohngebäudes an der Lyssstrasse 75 in Nidau gelegen, bietet diese grosszügige 4.5-Zimmer-Maisonette-Wohnung:
3 helle Schlafzimmer
Grosszügiges Wohnzimmer mit Loggia
Geschlossene, vollständig ausgestattete Küche
Badezimmer
Ein Aussenparkplatz (Fr. 50.-) und/oder ein Innenparkplatz (Fr. 100.-) können zusätzlich gemietet werden.
Die Wohnung befindet sich in der Nähe von öffentlichen Verkehrsmitteln, Einkaufsmöglichkei...
Kostenaufstellung
- Nettokosten
- CHF 1’590
- Zusätzliche Kosten
- CHF 300
- Gesamtkosten
- CHF 1’590
Immobiliendetails
- Verfügbar ab
- Nach Vereinbarung
- Zimmer
- 4.5
- Wohnfläche
- 96 m²




