Wohnung mieten - Rheinfelsstrasse 72, 7000 Chur
Warum Sie diese Immobilie lieben werden
Helle, offene Wohnräume
Hochwertige Küchengeräte
Eigener Balkon/Terrasse
Besichtigung vereinbaren
Besichtigung buchen
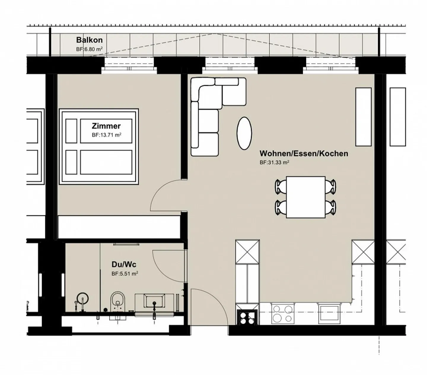
2½-zimmerwohnung mit keller
Ich vermiete ab dem 1. Januar 2026 eine hochwertige und moderne Wohnung im beliebten Churavita-Projekt in Chur. Die Wohnanlage überzeugt durch ihre ruhige, zentrale Lage, die hochwertige Architektur sowie die direkte Nähe zu Einkaufsmöglichkeiten, öffentlichem Verkehr und Naherholungsgebieten.
Die Wohnung bietet ein helles, offenes Wohnkonzept mit grossen Fensterfronten, hochwertigen Materialien und einem komfortablen Grundriss. Ideal für Singles, Paare oder Berufstätige, die modernes Wohnen auf ...
Kostenaufstellung
- Nettokosten
- CHF 1’850
- Zusätzliche Kosten
- CHF 150
- Gesamtkosten
- CHF 1’850
Immobiliendetails
- Verfügbar ab
- Nach Vereinbarung
- Zimmer
- 2.5
- Baujahr
- 2025
- Renovierungsjahr
- 2025
- Wohnfläche
- 58 m²
- Etage
- 3.
- Geschosse
- 3



