Wohnung mieten - Holenackerstrasse 65, 3027 Bern
Warum Sie diese Immobilie lieben werden
Komplett saniert 2023
Offene Küche mit modernen Geräten
Nahe Einkaufsmöglichkeiten und ÖV
Besichtigung vereinbaren
Besichtigung mit Kim buchen
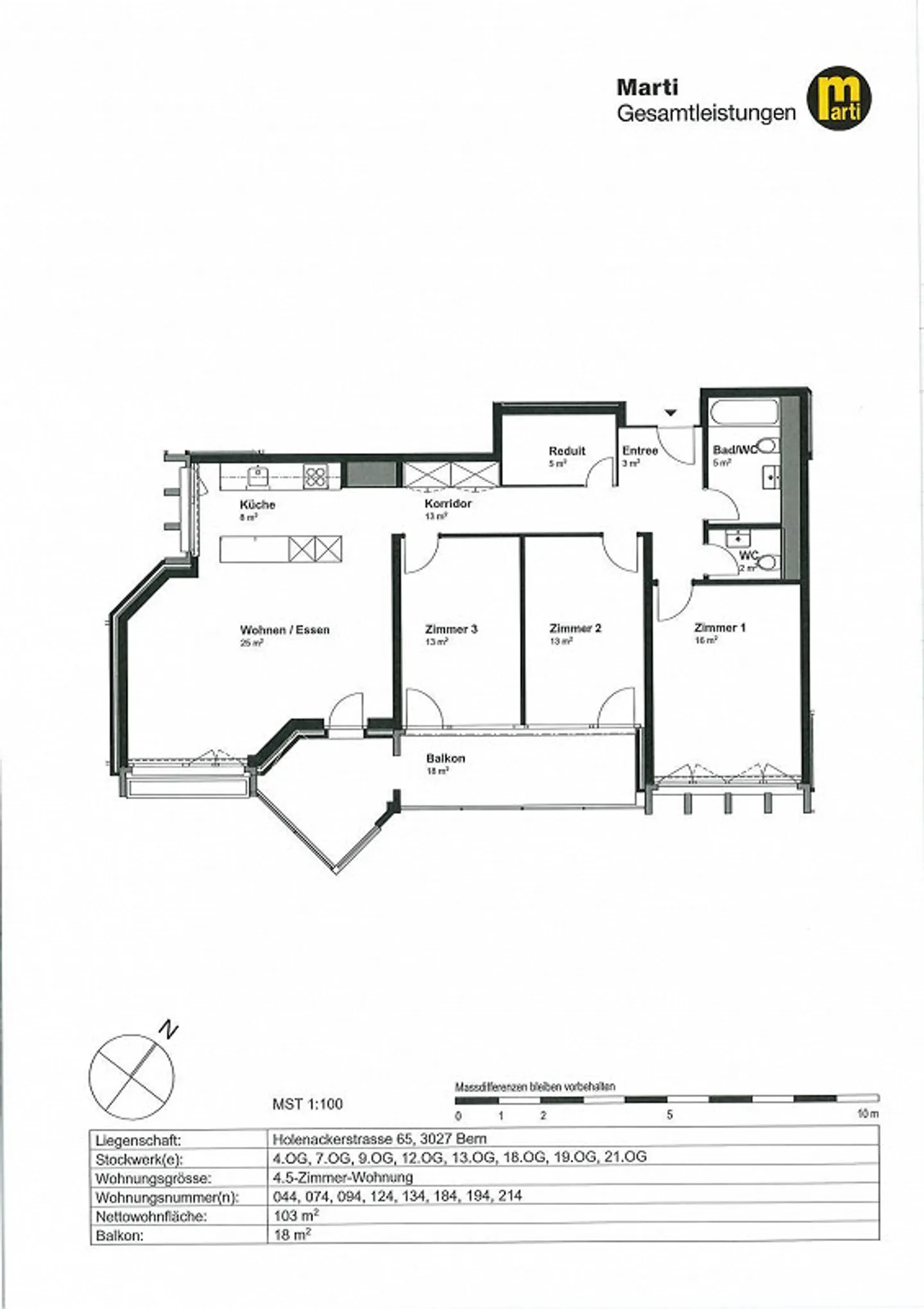
Attraktive 4.5-Zimmerwohnung in Bern
Wir vermieten per 1. Juli 2026 oder nach Vereinbarung im Hochhaus an der Holenackerstrasse 65 in Bern eine 4.5-Zimmerwohnung.
Die Liegenschaft wurde im Jahr 2022/2023 komplett saniert (Küchen, Bäder, Bodenbeläge, Neumalerei, Einbauschränke, Fenster, Storen, Fassade usw.)
Die 4.5-Zimmerwohnung (103m2) bietet folgende Vorzüge:
- Nasszelle mit Badewanne/WC/Lavabo und zusätzlich separates WC (Plattenboden)
- offene Küche mit Geschirrspüler, Glaskeramikherd, Kühlschrank mit zusätzlichen Tiefkühlschublad...
Kostenaufstellung
- Nettokosten
- CHF 2'090
- Zusätzliche Kosten
- CHF 390
- Gesamtkosten
- CHF 2'090
Immobiliendetails
- Verfügbar ab
- Nach Vereinbarung
- Zimmer
- 4.5
- Wohnfläche
- 103 m²
- Etage
- 22.



