Wohnung mieten - Rue Du Rhône 61, 1204 Genève
Warum Sie diese Immobilie lieben werden
Atemberaubender Seeblick
Hohe Decken mit sichtbaren Balken
Renovierung für moderne Annehmlichkeiten
Besichtigung vereinbaren
Besichtigung mit Sara buchen
Im herzen von genf, schöne wohnung mit französischem balkon und atemberaubendem blick auf den see
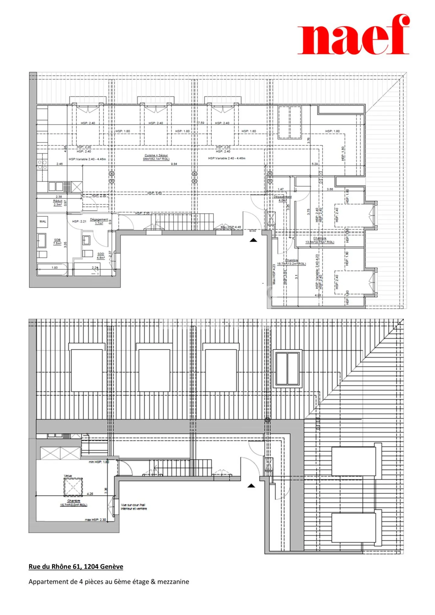
Im Herzen von Genf, in der Rue du Rhône, bieten wir eine geräumige 4-Zimmer-Wohnung im obersten Stockwerk eines schönen Gebäudes mit Aufzug an. Mit einer Nutzfläche von 165 m² zeichnet sie sich durch eine Deckenhöhe von bis zu 4,40 Metern und ihre sichtbare Dachkonstruktion aus, die einen authentischen Charme und eine einzigartige Atmosphäre verleiht. Sie können auch einen atemberaubenden Blick auf den Hafen, den Jet d'eau und den See genießen.
Derzeit wird diese Wohnung umfassend renoviert und w...
Kostenaufstellung
- Nettokosten
- CHF 5’500
- Zusätzliche Kosten
- CHF 300
- Gesamtkosten
- CHF 5’500
Immobiliendetails
- Verfügbar ab
- Nach Vereinbarung
- Zimmer
- 4
- Etage
- 6.




