Wohnung mieten - Bruchstrasse 60, 6003 Luzern
Warum Sie diese Immobilie lieben werden
Geräumige, helle Küche
Charmante Parkettböden
Nah an Verkehr und Geschäften
Besichtigung vereinbaren
Besichtigung mit Die buchen
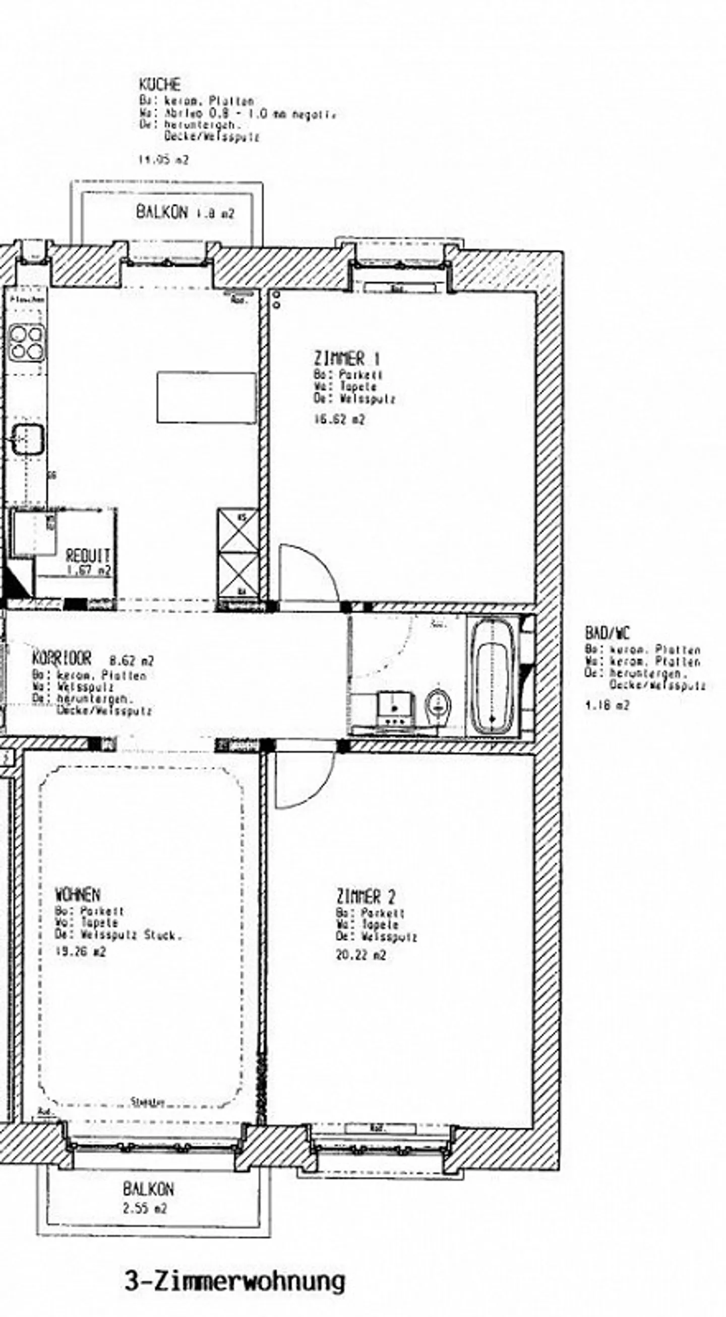
Altbauwohnung mit modernem Ausbaustand an bester Lage
Diese Wohnung im begehrten Bruchquartier vermittelt Wohlbefinden und ist eine Oase der Ruhe inmitten des pulsierenden Luzerns.
Unser Objekt spricht mit folgenden Punkten für sich selbst:
- zentrale Lage
- grosszügige ausgestattete lichtdurchflutete Küche
- Vorratskammer/Abstellraum mit eigenem Waschturm
- breiter offener Eingangsbereich
- charmante alte Parkettböden
- viel Raumatmosphäre durch Zierleisten & Deckenrosetten
- Öffentliche Verkehrsmittel und Einkaufsmöglichkeiten befinden sich in unm...
Kostenaufstellung
- Nettokosten
- CHF 2’095
- Zusätzliche Kosten
- CHF 175
- Gesamtkosten
- CHF 2’095
Immobiliendetails
- Verfügbar ab
- Nach Vereinbarung
- Zimmer
- 3
- Baujahr
- 1908
- Wohnfläche
- 84 m²
- Etage
- 2.



