Wohnung mieten - Via Carona 6, 6900 Paradiso
Warum Sie diese Immobilie lieben werden
Atemberaubender See- und Stadtblick
Moderne Küche mit Geräten
Fitnessraum und überdachte Parkplätze
Besichtigung vereinbaren
Besichtigung mit Monaco buchen
Elegante und hochwertige 3,5 Zimmer mit Seeblick
Elegantes und prestigeträchtiges Wohnhaus mit atemberaubendem Blick auf den See und die Stadt. Sorgfältig gepflegt, ausgestattet mit jedem Komfort, mit einem Videoüberwachungs- und Alarmsystem.
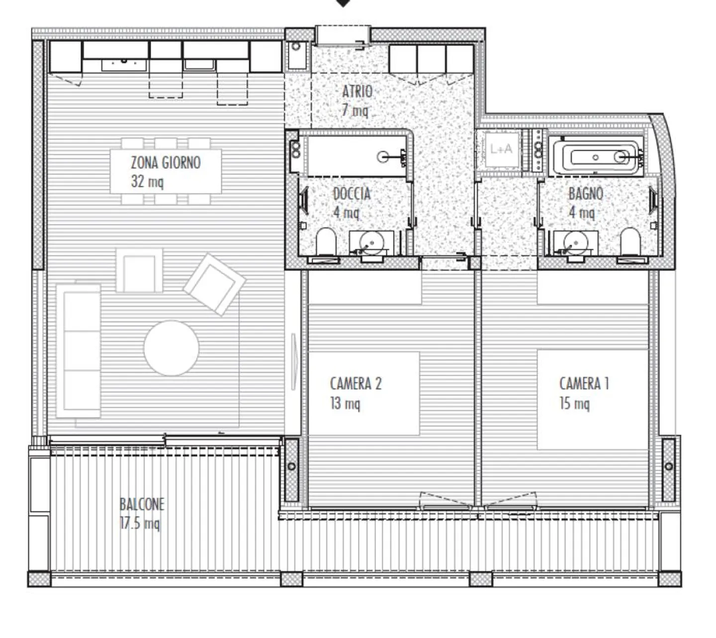
Elegante und helle Wohnung im 2. Stock besteht aus einem geräumigen Wohnzimmer mit großer Terrasse, offener Küche mit modernsten Geräten, Hauptschlafzimmer mit Badewanne; zusätzliches Schlafzimmer, Duschbad. Geräumiger Flur mit Einbauschränken, Platz für Waschmaschine-Trockner-Säule.
Zur Abrundung des Angeb...
Kostenaufstellung
- Nettokosten
- CHF 2’650
- Zusätzliche Kosten
- CHF 200
- Gesamtkosten
- CHF 2’650
Immobiliendetails
- Verfügbar ab
- Nach Vereinbarung
- Zimmer
- 3.5
- Baujahr
- 2020
- Wohnfläche
- 87 m²
- Etage
- 2.
- Geschosse
- 5



