Wohnung mieten - Rue Des Tanneurs / Gerbergasse 6, 2502 Biel/Bienne
Warum Sie diese Immobilie lieben werden
Offene Küche mit Geschirrspüler
Keine Kaution erforderlich
Privater Balkon zur Entspannung
Besichtigung vereinbaren
Besichtigung mit Michèle buchen
MIETEN OHNE KAUTION - Wohnen in lebendigem Stadtquartier
Diese zentral gelegene Wohnsiedlung ist voller Leben. Ob Paar, Single oder Familie: Sie finden hier ein modern ausgestattetes Zuhause. Als urbaner Mensch wissen Sie das Stadtleben zu schätzen, das in der näheren und weiteren Umgebung pulsiert.
Für Ihre Wohnqualität:
- offene Küche mit Glaskeramik und Geschirrspüler
- Nasszelle mit Bad/WC
- eigene Waschmaschine und eigener Tumbler
- Wandschränke im Korridor
- Balkon
- Kellerabteil
- Lift
Bei diesem Mietobjekt müssen Sie nicht wie üblich drei Monats...
Kostenaufstellung
- Nettokosten
- CHF 1’770
- Zusätzliche Kosten
- CHF 240
- Gesamtkosten
- CHF 1’770
Immobiliendetails
- Verfügbar ab
- Nach Vereinbarung
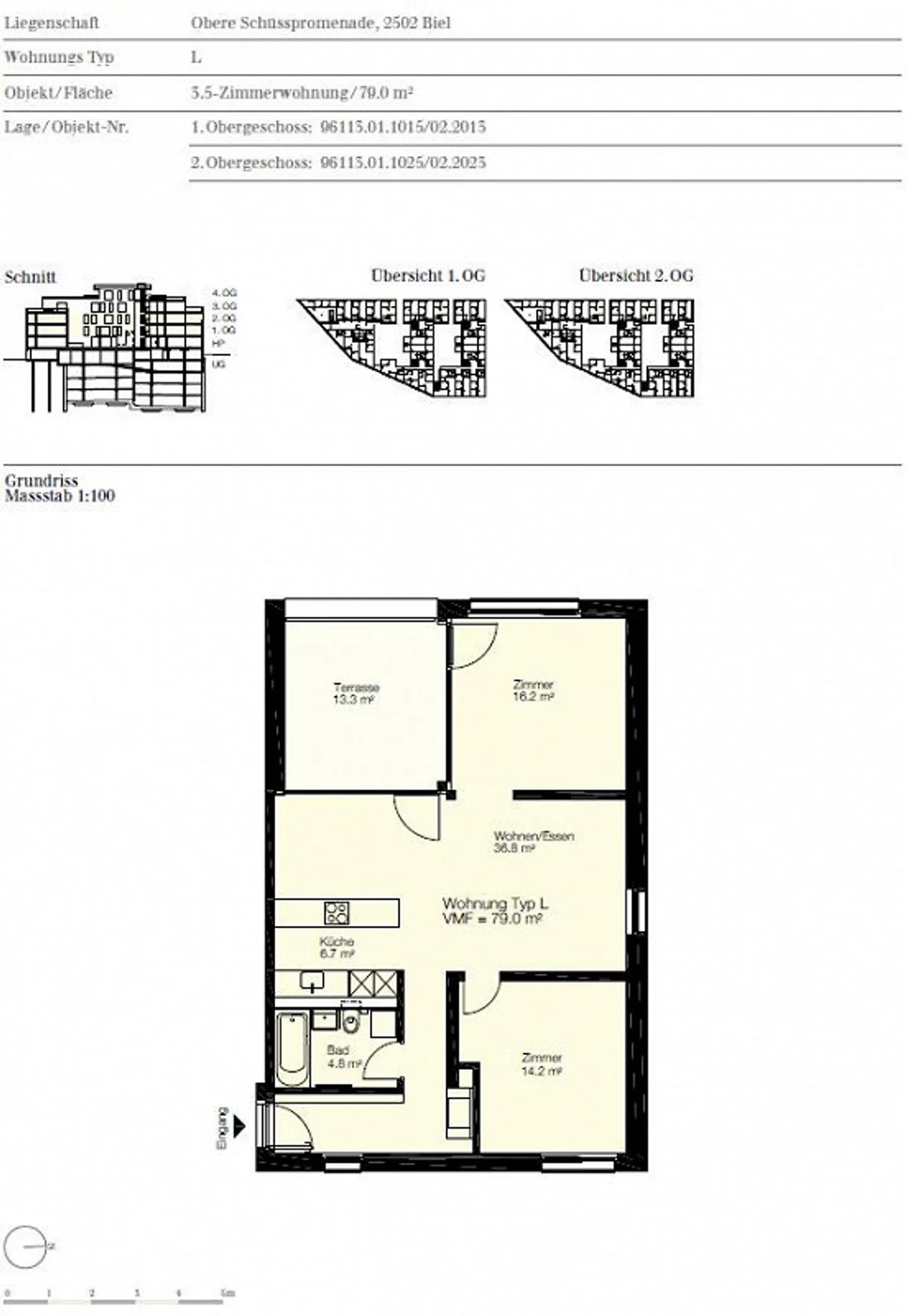
- Zimmer
- 3.5
- Baujahr
- 2012
- Wohnfläche
- 79 m²
- Etage
- 2.



