Wohnung mieten - Hagenwilerstrasse 6, 8580 Amriswil
Warum Sie diese Immobilie lieben werden
Heller Wohnbereich
Moderne Küchenausstattung
Grosse grüne Terrasse
Besichtigung vereinbaren
Besichtigung mit Wincasa buchen
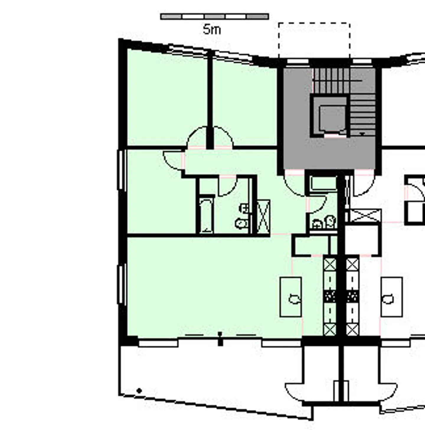
Wir vermieten eine grosszügige 4.5 Zimmer-Wohnung mit 109m² im Erdgeschoss. Die Wohnung verfügt über folgende Vorteile:
- Helle, grosse Wohnung
- Wohnbereich mit weitläufiger Fensterfront
- Ganze Wohnung Eiche-Natur-Parkett
- Korridor mit Einbauschrank
- Küche mit Granitabdeckung, Geschirrspüler und Glaskeramik
- Modernes Bad/WC und DU/WC mit keramischen Platten
- Wäscheturm WM/TM
- Grosser Sitzplatz mit Blick ins Grüne
- Durchdachter Grundriss
- Einstellplätze für CHF 140.00/monatl. verfügbar
- Grosszügig...
Kostenaufstellung
- Nettokosten
- CHF 2’020
- Zusätzliche Kosten
- CHF 230
- Gesamtkosten
- CHF 2’020
Immobiliendetails
- Verfügbar ab
- Nach Vereinbarung
- Zimmer
- 4.5
- Baujahr
- 2010
- Wohnfläche
- 109 m²
- Etage
- EG



