Wohnung mieten - Brückenstrasse 6, 8280 Kreuzlingen
Warum Sie diese Immobilie lieben werden
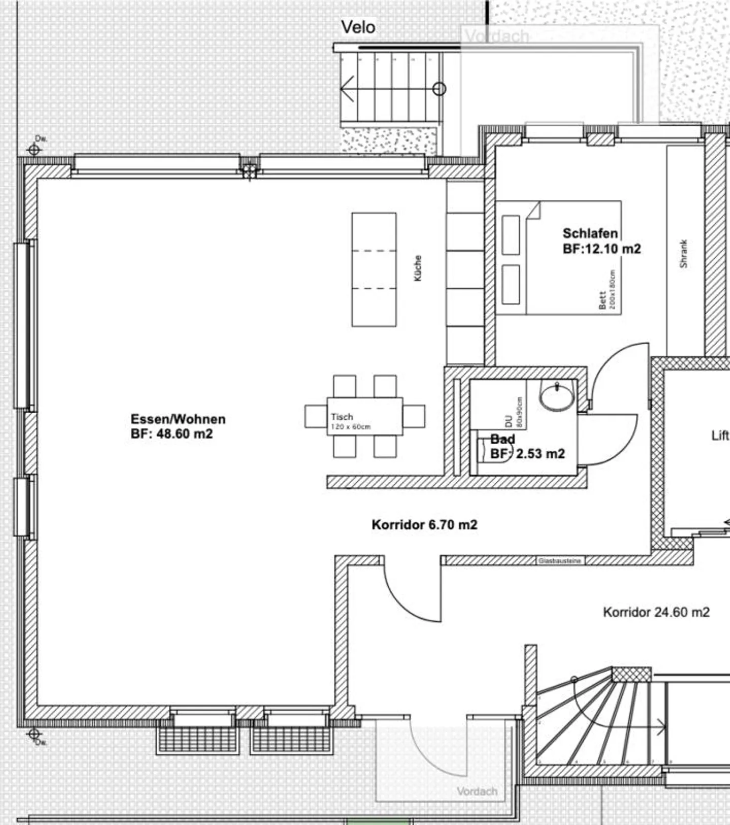
Heller Wohnbereich mit 48 m²
Moderne Küche mit Geschirrspüler
Ruhige Lage nahe der Grenze
Besichtigung vereinbaren
Besichtigung mit Rüegge buchen
Grenznahe und grosszügige 2½-zimmer wohnung im erdgeschoss
Grenznahe 2.5-Zimmer Wohnung nach Totalsanierung zu vermieten
Diese aussergewöhnliche Stadt-Wohnung eignet sich ideal für 1-2 Personen, die urbanes Wohnen mit Komfort und Ruhe verbinden möchten. Sie liegt zentral in einer ruhigen
Nebenstrasse (Tempo 30-Zone). Die deutsche Grenze sowie die Bushaltestelle befinden sich direkt vor der Tür - perfekt für kurze Wege und gute Anbindungen.
Das Herzstück der Wohnung ist der grosszügige Wohnraum mit gut 48 m2. Er besticht durch seine helle, sonnendurchflute...
Kostenaufstellung
- Nettokosten
- CHF 1’675
- Zusätzliche Kosten
- CHF 185
- Gesamtkosten
- CHF 1’675
Immobiliendetails
- Verfügbar ab
- Nach Vereinbarung
- Zimmer
- 2.5
- Renovierungsjahr
- 2025
- Wohnfläche
- 70 m²
- Etage
- EG
- Geschosse
- 3



