Wohnung mieten - Weiherstrasse 55, 8580 Amriswil
Warum Sie diese Immobilie lieben werden
Sonniger Westbalkon
Moderne Küche mit V-Zug
Zentrale Lage in Amriswil
Besichtigung vereinbaren
Besichtigung mit 08.01.2026 buchen
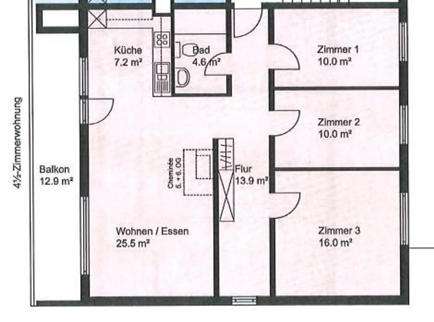
Preiswerte 4.5 Zimmerwohnung in Amriswil
Diese helle 4½-Zimmerwohnung befindet sich in einem gepflegten Mehrfamilienhaus an zentraler Lage in Amriswil. Die Wohnung bietet eine durchdachte Raumaufteilung mit einem grosszügigen Wohnzimmer, einer offenen Küche sowie hellen und freundlichen Räumen. Ein sonniger Westbalkon lädt zum Entspannen ein.
Das Gebäude wird über ein Treppenhaus mit Lift erschlossen und verfügt über eine Ölheizung sowie Kunststoff-Isolierglasfenster für einen effizienten Energieverbrauch. Im Untergeschoss stehen Ihnen ...
Kostenaufstellung
- Nettokosten
- CHF 1’490
- Zusätzliche Kosten
- CHF 240
- Gesamtkosten
- CHF 1’490
Immobiliendetails
- Verfügbar ab
- Nach Vereinbarung
- Zimmer
- 4.5
- Wohnfläche
- 87 m²
- Etage
- 3.



