1 / 27

Wohnung mieten - Schützenstrasse 51, 9100 Herisau

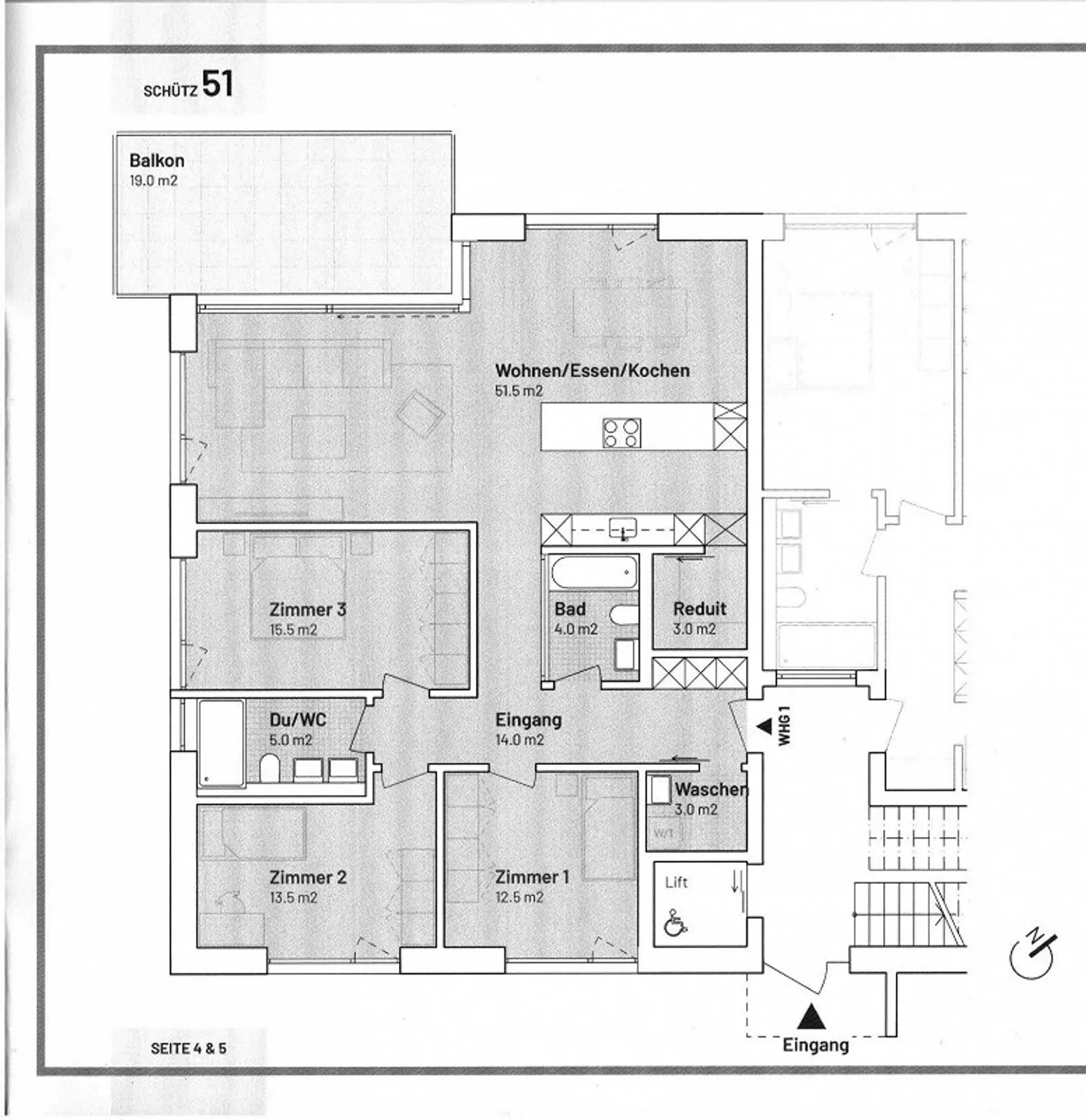
4.5 Zimmer • 127 m² • Erdgeschoss
CHF 2’450.-
CHF 231 m² / year

Warum Sie diese Immobilie lieben werden

19 m2 Balkon zur Entspannung

Gemeinschaftsgarten mit Pool

30 m2 Hobbyraum inklusive

Besichtigung vereinbaren

Besichtigung mit Züst buchen

Züst
Züst Bauleitungen AG

Grosszügige neubauwohnung als erstbezug im eigentumsstandard

Wir vermieten per sofort eine grosszügige Neubauwohnung als Erstbezug. Die Wohnung befindet sich im Erdgeschoss, hat zusätzlich einen Balkon mit 19 m2 und eine Rasen-Aussenfläche vor zwei Zimmern. In dem Neubau befinden sich nur fünf Wohneinheiten; dies ermöglicht eine familiäre Atmosphäre.

Die Wohnung wurde als Eigentumswohnung gebaut und hat darum einen sehr hohen Ausbaustandard.

Zu der Wohnanlage gehört eine Gartenanlage inklusive Sitzplatz, Swimmingpool und Grillstelle, welche allen Mietern zu...

Immobiliendetails

Verfügbar ab
Nach Vereinbarung
Zimmer
4.5
Baujahr
2025
Wohnfläche
127
Etage
EG
Geschosse
3

Eigenschaften

Garage
Balkon
Parkplätze
Unverbaubare Aussicht
Lift
Keller
Lagerraum
Kabel-TV
Internet
Minergie-zertifiziert
Rollstuhlgerecht
Haustiere erlaubt

Agentur

Züst Bauleitungen AG
Adresse:Herisau, Rüti, 9100

Standort

Schützenstrasse 51, 9100 Herisau

Quellen