Wohnung mieten - Rue Schaub 5, 1202 Genève
Warum Sie diese Immobilie lieben werden
Nah an öffentlichen Verkehrsmitteln
Voll ausgestattete Küche
Kleiner Balkon
Besichtigung vereinbaren
Besichtigung buchen
In der Nähe des Nationsviertels und des Bahnhofs Cornavin
Die Rue Schaub 5 liegt ideal in der Nähe des Nationsviertels und nicht weit vom Bahnhof Cornavin, in der Nähe von Geschäften und öffentlichen Verkehrsmitteln.
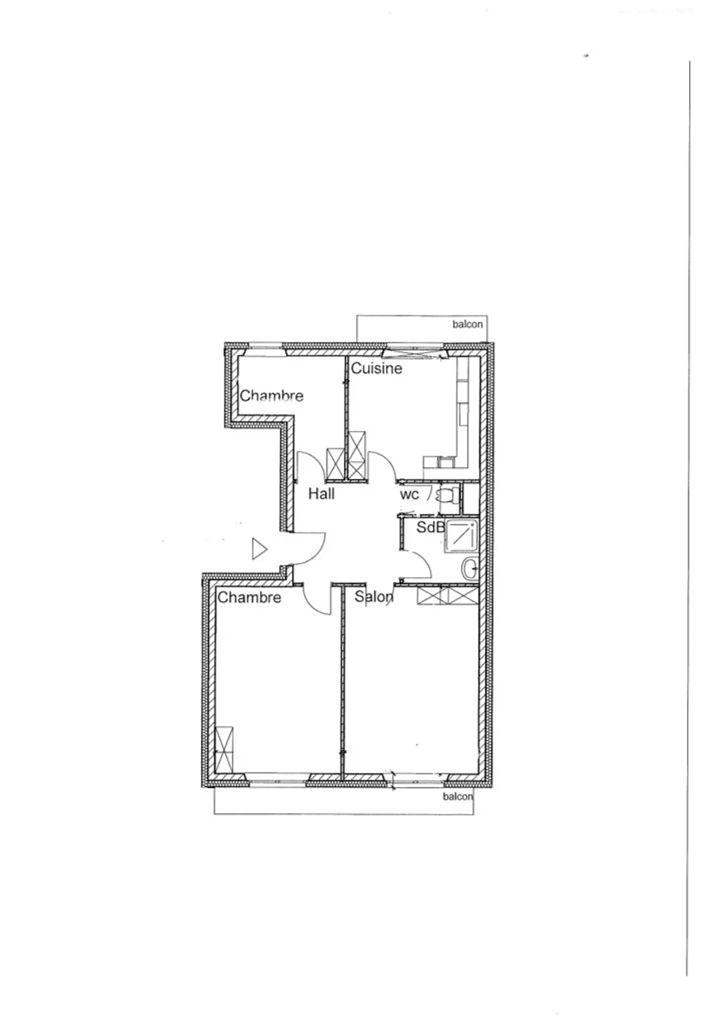
Die von uns angebotene Wohnung befindet sich im 5. Stock eines schönen Gebäudes mit Aufzug und gesichertem Eingang.
Sie besteht aus:
Einem Eingangsbereich, einer voll ausgestatteten Küche, einem Wohnzimmer mit kleinem Balkon, einem Schlafzimmer, einem kleinen Zimmer, einem Badezimmer und einer separaten Toilette.
Straßenbahn 14 / 18, Bus 3 / 1...
Kostenaufstellung
- Nettokosten
- CHF 2'890
- Zusätzliche Kosten
- CHF 300
- Gesamtkosten
- CHF 2'890
Immobiliendetails
- Verfügbar ab
- 01.01.1970
- Zimmer
- 3.5
- Baujahr
- 1910
- Wohnfläche
- 75 m²
- Etage
- 5.



