Penthouse mieten - Bahnhofstrasse 5, 9000 St. Gallen
Warum Sie diese Immobilie lieben werden
Heller Wohnbereich
Südseitige Terrasse
Moderne Küchenausstattung
Besichtigung vereinbaren
Besichtigung mit Trauffer buchen
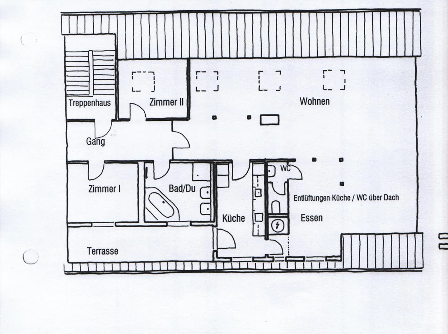
3.5-Zimmer-Dachwohnung mit Balkon
Entdecken Sie diese lichtdurchflutete 3.5-Zimmer-Dachwohnung mit 158 m² Wohnfläche im 3. Stock an der Bahnhofstrasse in St. Gallen. Zentral zwischen Hauptbahnhof und Altstadt gelegen, besticht die Wohnung durch eine zeitgemässe Ausstattung und bewahrt dank der Sichtbalken einen charmanten Charakter. Der grosszügige Wohnbereich kann unterschiedliche Wohnvorstellungen beherbergen. Die nach Süden gerichtete Terrasse mit Sicht auf den Freudenberg lädt zu Sonnenbaden oder BBQ ein. Die Küche verfügt ü...
Kostenaufstellung
- Nettokosten
- CHF 1'990
- Zusätzliche Kosten
- CHF 190
- Gesamtkosten
- CHF 1'990
Immobiliendetails
- Verfügbar ab
- Nach Vereinbarung
- Zimmer
- 3.5
- Wohnfläche
- 158 m²
- Etage
- 3.
- Geschosse
- 3


