Wohnung mieten - Chemin Du Pré Jaquet 4b, 1032 Romanel-sur-Lausanne
Warum Sie diese Immobilie lieben werden
Geräumige 26 m² Terrasse
Minergie-Standardbauweise
Dreifachverglaste Fenster
Besichtigung vereinbaren
Besichtigung mit Mme buchen
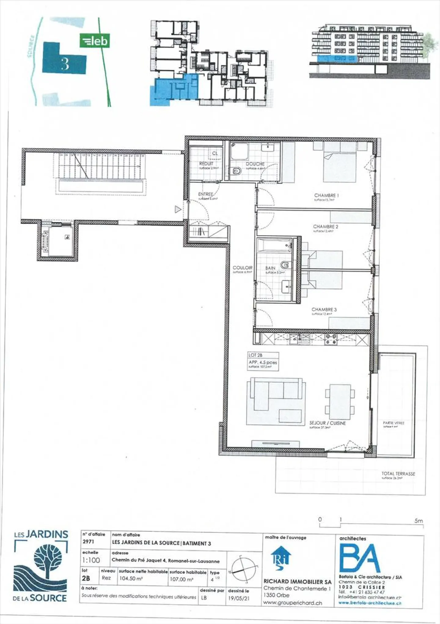
4,5-zimmer-wohnung
4,5 Zimmer mit Terrasse zur Miete in Romanel-sur-Lausanne ab dem 1. April 2026
Romanel-sur-Lausanne, nur wenige Schritte vom LEB-Bahnhof entfernt, 107 m2 Wohnung, bestehend aus:
- Eingangsbereich mit Wandschränken
- Voll ausgestattete offene Küche
- Großes Wohnzimmer mit Zugang zu einer 26 m2 großen Terrasse mit einem Teilveranda (vollständig abnehmbare Verglasung)
- 3 Schlafzimmer
- 2 Badezimmer (Bad/WC und Dusche/WC)
- Ein Abstellraum mit Anschluss für die Installation einer Waschsäule
- Ein Keller
Mer...
Kostenaufstellung
- Nettokosten
- CHF 2’530
- Zusätzliche Kosten
- CHF 280
- Gesamtkosten
- CHF 2’530
Immobiliendetails
- Verfügbar ab
- Nach Vereinbarung
- Zimmer
- 4.5
- Badezimmer
- 2
- Wohnfläche
- 107 m²



