Wohnung mieten - Bruggstrasse 4b, 4153 Reinach BL
Warum Sie diese Immobilie lieben werden
Grosse 33.4 m² Terrasse
Heller, zweigeschossiger Grundriss
Familienfreundliche Lage
Besichtigung vereinbaren
Besichtigung mit Villalta buchen
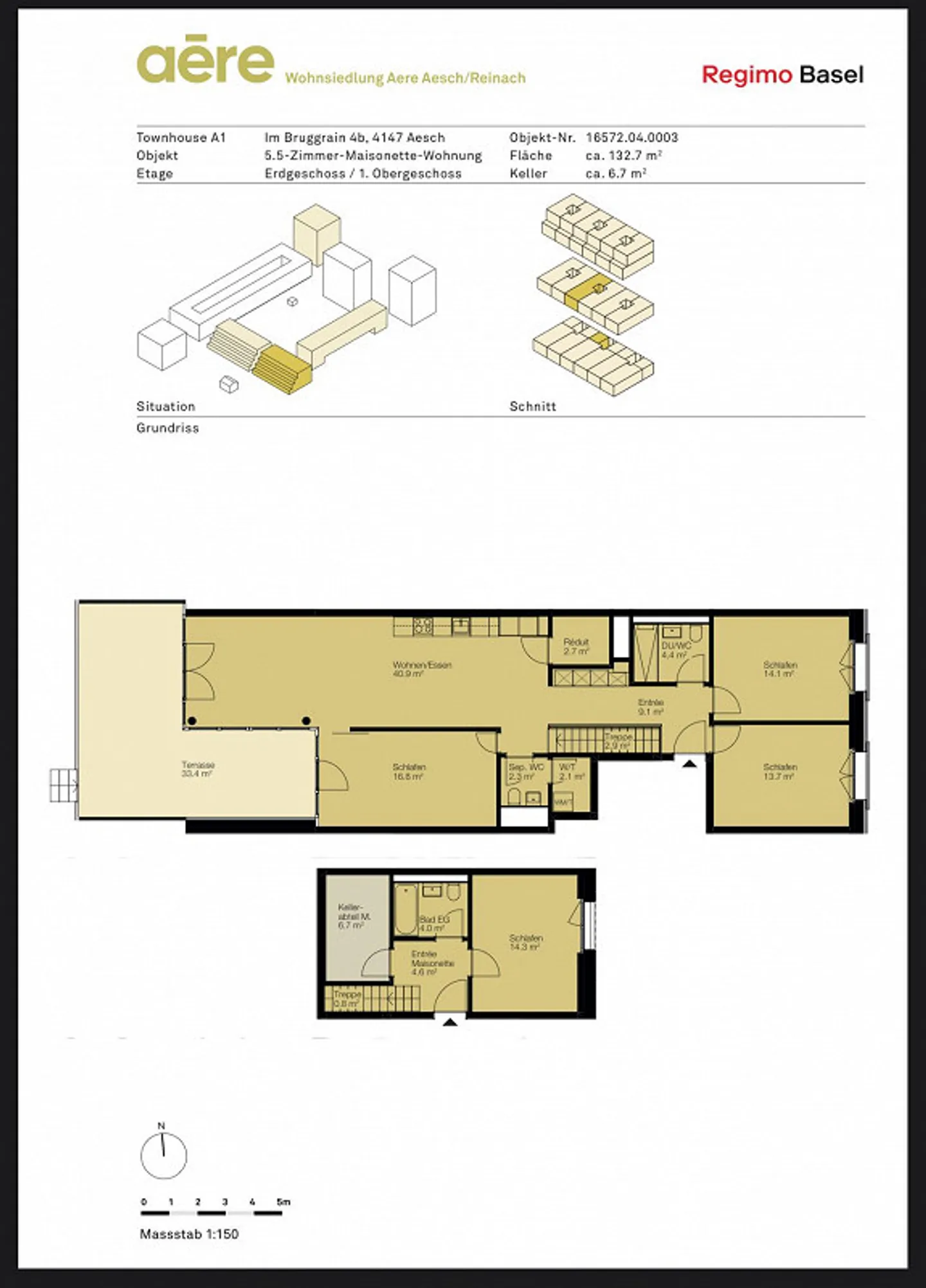
5.5 zi. neubau maisonette
Nachmieter gesucht per 01.03.2026 – Moderne 5.5-Zimmer-Maisonette-Wohnung (132.7 m²) im Townhouse-Stil in 4147 Aesch
Die Wohnung überzeugt durch ihren grosszügigen Grundriss, viel Licht, moderne Ausstattung und den angenehmen Haus-ähnlichen Charakter über zwei Etagen.
🏡 Highlights der Wohnung
- 132.7 m² Wohnfläche
- 5.5 Zimmer, ideal für Familien oder Homeoffice
- Maisonette-Stil – wohnen wie im eigenen Haus
- Grosser Wohn-/Essbereich mit moderner, hochwertiger Küche
- 33.4 m² Loggia/Terrasse mit ...
Immobiliendetails
- Verfügbar ab
- Nach Vereinbarung
- Zimmer
- 5.5
- Baujahr
- 2025
- Wohnfläche
- 132.7 m²
- Etage
- EG



