Penthouse mieten - Allée Charles-Edouard-Guillaume 4b, 1723 Marly
Warum Sie diese Immobilie lieben werden
Geräumiger 51 m² überdachter Balkon
Heller Wohnbereich mit Lichtkuppeln
Annehmlichkeiten in einem ökologischen Viertel
Besichtigung vereinbaren
Besichtigung buchen
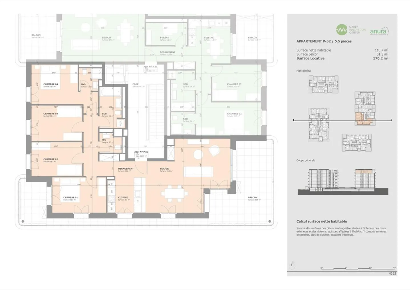
Dachgeschoss 5.5 Zimmer
Prairie 4 - Wohnung 5.5 Zimmer im Dachgeschoss
Neue und hochwertige Wohnung mit 5.5 Zimmern im Dachgeschoss mit Dachfenster!
Zu vermieten in Prairie 4, Marly
Verfügbar ab dem 1. April 2026
Wir bieten Ihnen neue Wohnungen, die Komfort und eine angenehme Lebensqualität vereinen. Im Herzen des Öko-Viertels, nur wenige Schritte vom Einkaufszentrum, Restaurants, Schulen, Kindergärten, Schwimmbad und Bushaltestellen (Linie 8 / Takt alle 15 Minuten) gelegen.
Aufteilung:
Eingangsbereich mit Wandschrank
Ger...
Kostenaufstellung
- Nettokosten
- CHF 3’400
- Zusätzliche Kosten
- CHF 310
- Gesamtkosten
- CHF 3’400
Immobiliendetails
- Verfügbar ab
- Nach Vereinbarung
- Zimmer
- 5.5
- Wohnfläche
- 119 m²



