Wohnung mieten - Poststrasse 45, 8953 Dietikon
Warum Sie diese Immobilie lieben werden
Hohe Privatsphäre
Grosszügiges Entrée
Schneller Zugang nach Zürich
Besichtigung vereinbaren
Besichtigung buchen
Zentrales Wohnen in Dietikon
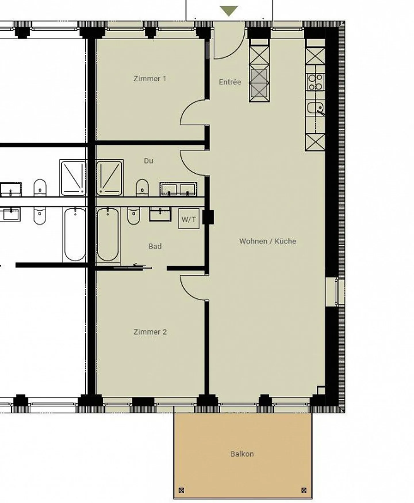
In einem ruhigen Quartier, in kurzer Gehdistanz zum Bahnhof sowie Einkaufsmöglichkeiten vermieten wir diese 3.5-Zimmerwohnung eines Mehrfamilienhauses. Die Wohnung steht ab 01.04.2026 oder nach Absprache zur Verfügung.
Das Objekt überzeugt durch ihre durchdachten und praktischen Grundrisse und folgenden Vorzügen:
\- Hohe Privatsphäre
\- grosszügiges Entrée mit Tageslicht und praktischen Einbauschränken
\- 2 Badezimmer inklusive Waschturm
Für alle, die die Nähe zur Stadt Zürich schätzen: Vom Bahnhof D...
Kostenaufstellung
- Nettokosten
- CHF 2’590
- Zusätzliche Kosten
- CHF 210
- Gesamtkosten
- CHF 2’590
Immobiliendetails
- Verfügbar ab
- 01.04.2026
- Zimmer
- 3.5
- Wohnfläche
- 85 m²
- Etage
- EG



