Wohnung mieten - Bahnhofstrasse 43, 4950 Huttwil
Warum Sie diese Immobilie lieben werden
Geräumige offene Küche
Sonnige Loggia-Terrasse
Praktisches Einkaufen im Haus
Besichtigung vereinbaren
Besichtigung mit Alle buchen
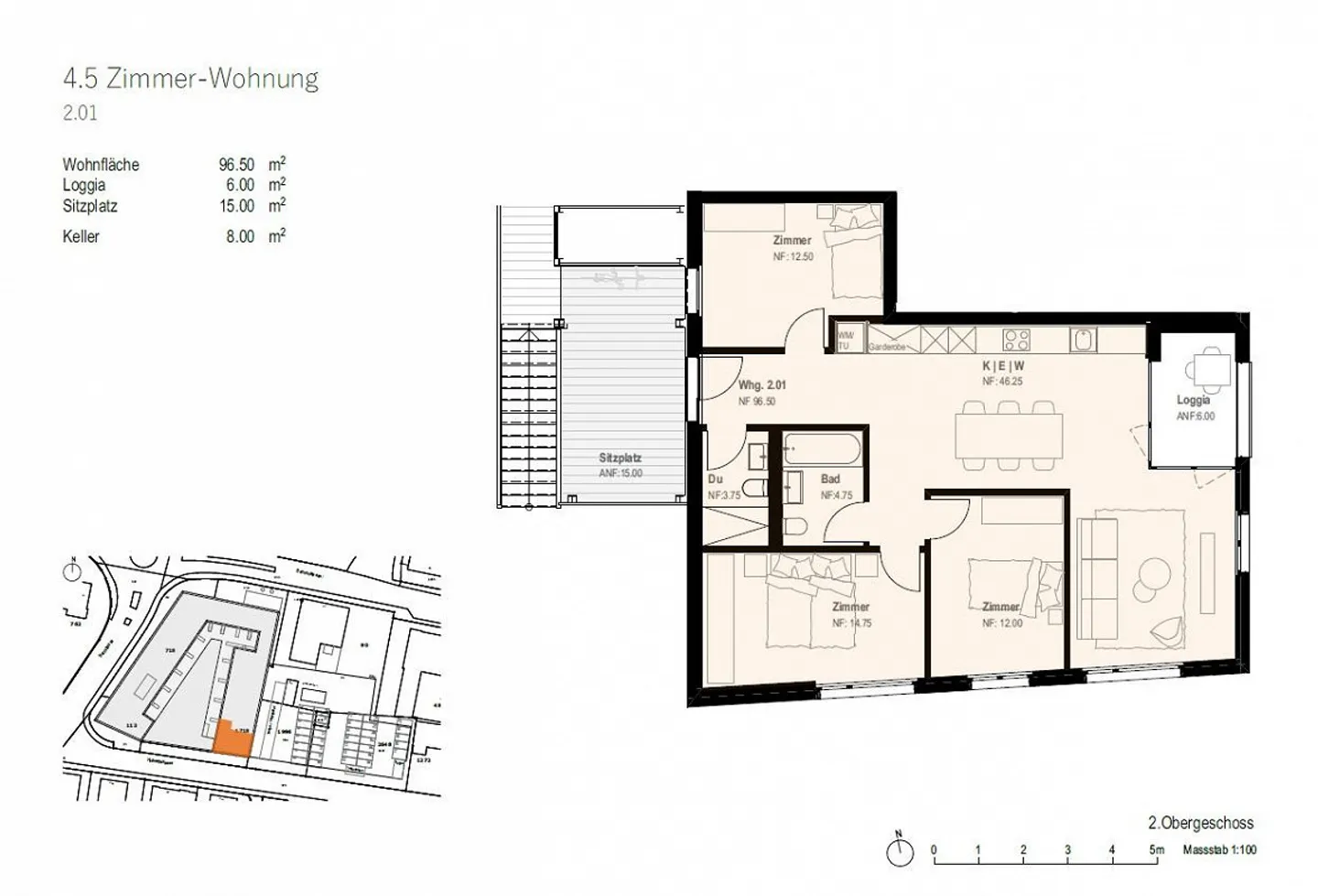
Modernes Wohnen, Loggia und Sitzplatz
Wir vermieten per sofort oder nach Vereinbarung eine attraktive, moderne 4½-Zimmer-Wohnung mit folgenden Vorzügen:
- Gut durchdachter und vielseitig möblierbarer Grundriss
- Grosszügige, helle und offene Küche mit Glaskeramik und Geschirrspüler
- Moderne und hochwertige Materialien
- Parkettboden in der ganzen Wohnung
- Bad/WC mit Wanne und separate Dusche/WC
- Waschturm in der Wohnung
- Sitzplatz im Innenhof und sonnige Loggia
- Grosses Kellerabteil mit Stromanschluss
- Lift vorhanden
- Einstell...
Kostenaufstellung
- Nettokosten
- CHF 1’795
- Zusätzliche Kosten
- CHF 250
- Gesamtkosten
- CHF 1’795
Immobiliendetails
- Verfügbar ab
- Nach Vereinbarung
- Zimmer
- 4.5
- Baujahr
- 2021
- Wohnfläche
- 97 m²
- Etage
- 2.



