Wohnung mieten - Eschenstrasse 41, 9524 Zuzwil SG
Warum Sie diese Immobilie lieben werden
Unverbaubare Panoramaaussicht
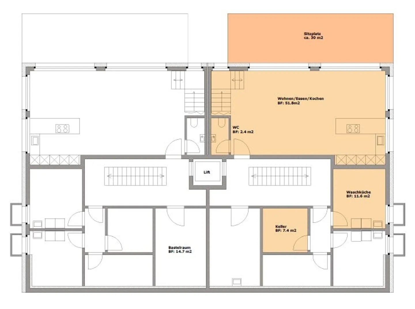
Hochwertige offene Küche
Private Waschküche inklusive
Besichtigung vereinbaren
Besichtigung buchen
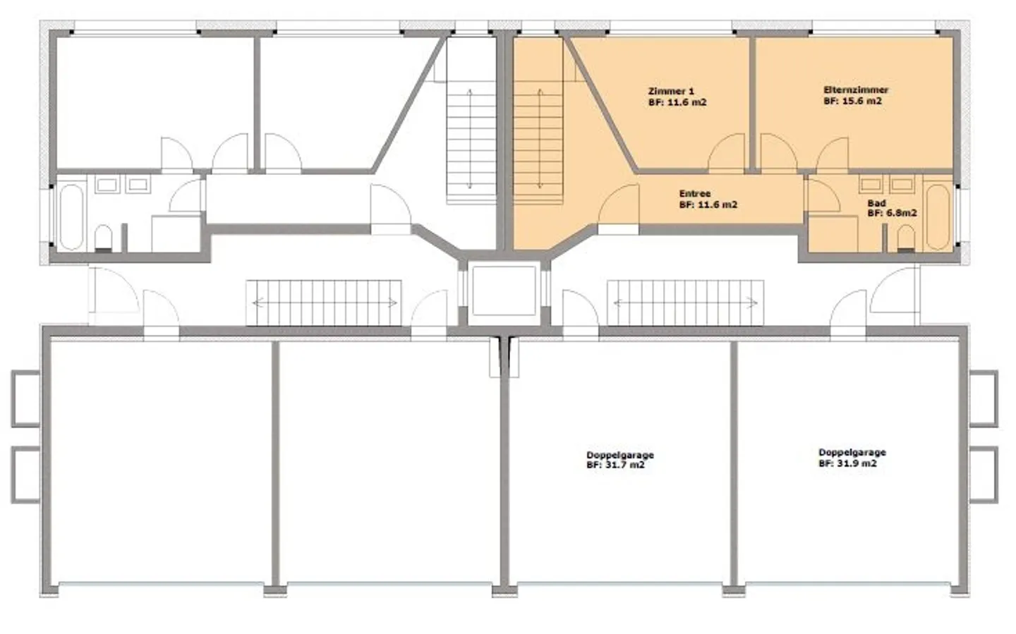
Aussergewöhnliche Maisonette-Wohnung mit eigenem Sitzplatz
Sie suchen etwas Aussergewöhnliches an einer unvergleichlichen Lage?
Wohnen im Eigentumsstandart, ruhige Lage in einer Sackgasse, unverbaubare Aussicht sowie eine steuergünstige Gemeinde sind nur eine kleine Auswahl an positiven Aspekten, die für diese Wohnung sprechen.
Weitere Vorzüge der Wohnung:
- hochwertige, offene Küche
- moderne, energiesparende Küchengeräte (inkl. Steamer)
- grosszügiger Wohnbereich mit Fernsicht
- geräumiges Schlafzimmer mit direktem Zugang zum Bad
- Nasszelle mit Du...
Kostenaufstellung
- Nettokosten
- CHF 2’290
- Zusätzliche Kosten
- CHF 240
- Gesamtkosten
- CHF 2’290
Immobiliendetails
- Verfügbar ab
- Nach Vereinbarung
- Zimmer
- 3.5
- Baujahr
- 2018
- Wohnfläche
- 101.7 m²
- Etage
- EG
- Geschosse
- 3



