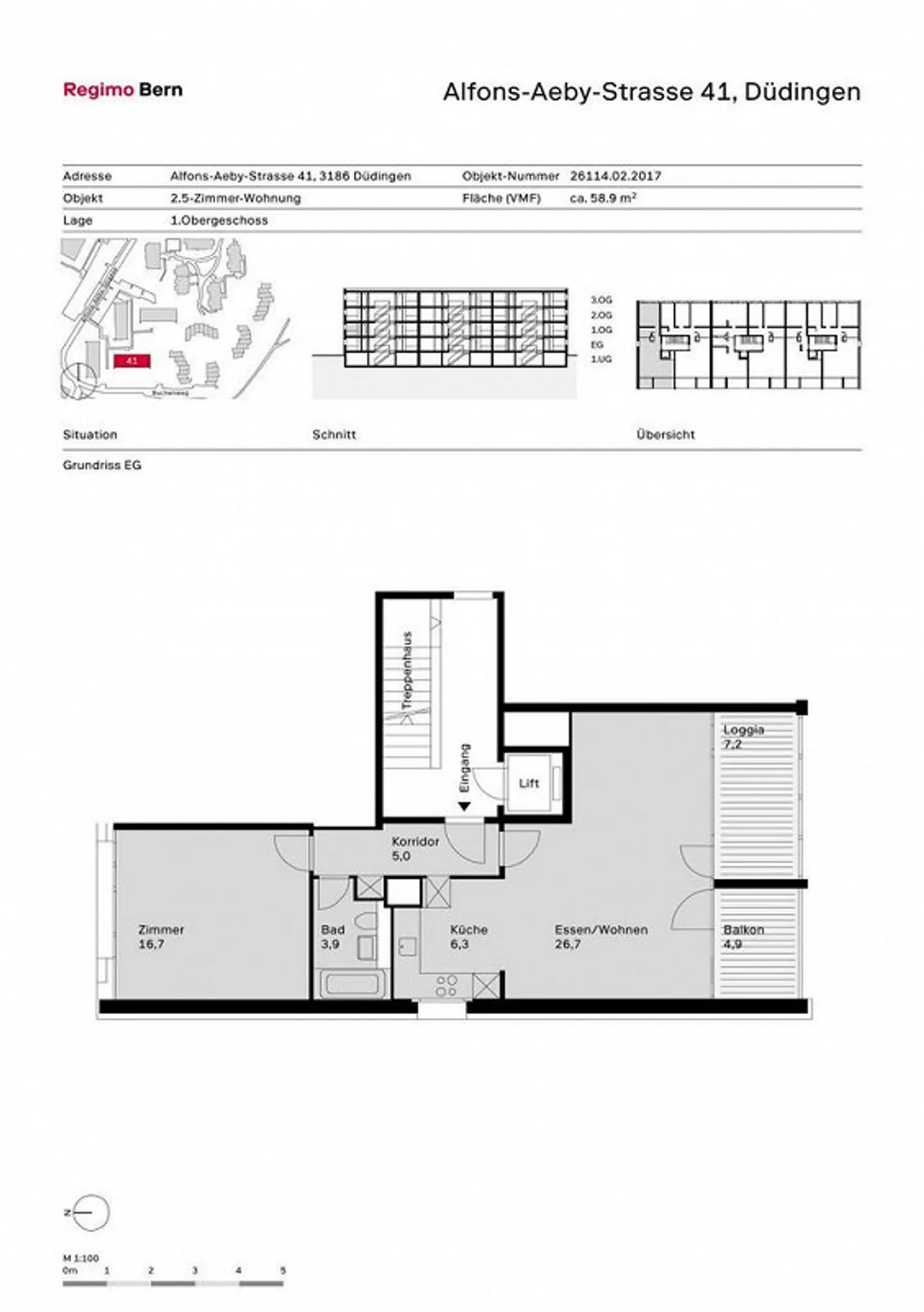
Wohnung mieten - Alfons-Aeby-Strasse 41, 3186 Düdingen
Warum Sie diese Immobilie lieben werden
Moderne Küche mit Geschirrspüler
Parkettboden in der ganzen Wohnung
Keine Kaution erforderlich
Besichtigung vereinbaren
Besichtigung mit Michèle buchen
MIETEN OHNE KAUTION - Wohnen im Grünen
Diese zentral gelegene Wohnsiedlung ist voller Leben. Ob Paar oder Single: Sie finden hier ein zeitgemäss ausgestattetes, preisgünstiges Zuhause. Ebenso angenehm für Sie sind die Anbindung der Wohnsiedlung an den öffentlichen Verkehr und die nahe gelegenen Einkaufsmöglichkeiten.
Für Ihre Wohnqualität:
- Küche mit Glaskeramik und Geschirrspüler
- Parkettboden in Wohn- und Schlafzimmer
- Plattenboden in Küche und Nasszelle
- Nasszelle mit Bad/WC
- Balkon
- Loggia
- Kellerabteil
- Lift
Zusätzlich auf...
Kostenaufstellung
- Nettokosten
- CHF 1’483
- Zusätzliche Kosten
- CHF 220
- Gesamtkosten
- CHF 1’483
Immobiliendetails
- Verfügbar ab
- Nach Vereinbarung
- Zimmer
- 2.5
- Baujahr
- 1974
- Renovierungsjahr
- 2010
- Wohnfläche
- 62 m²
- Etage
- 1.



