Dachgeschosswohnung mieten - Wenslingerstrasse 4, 4495 Zeglingen
Warum Sie diese Immobilie lieben werden
Helle und geräumige Zimmer
Moderne Küche zum Kochen
Ruhiges Dorf mit Natur
Besichtigung vereinbaren
Besichtigung mit Janine buchen
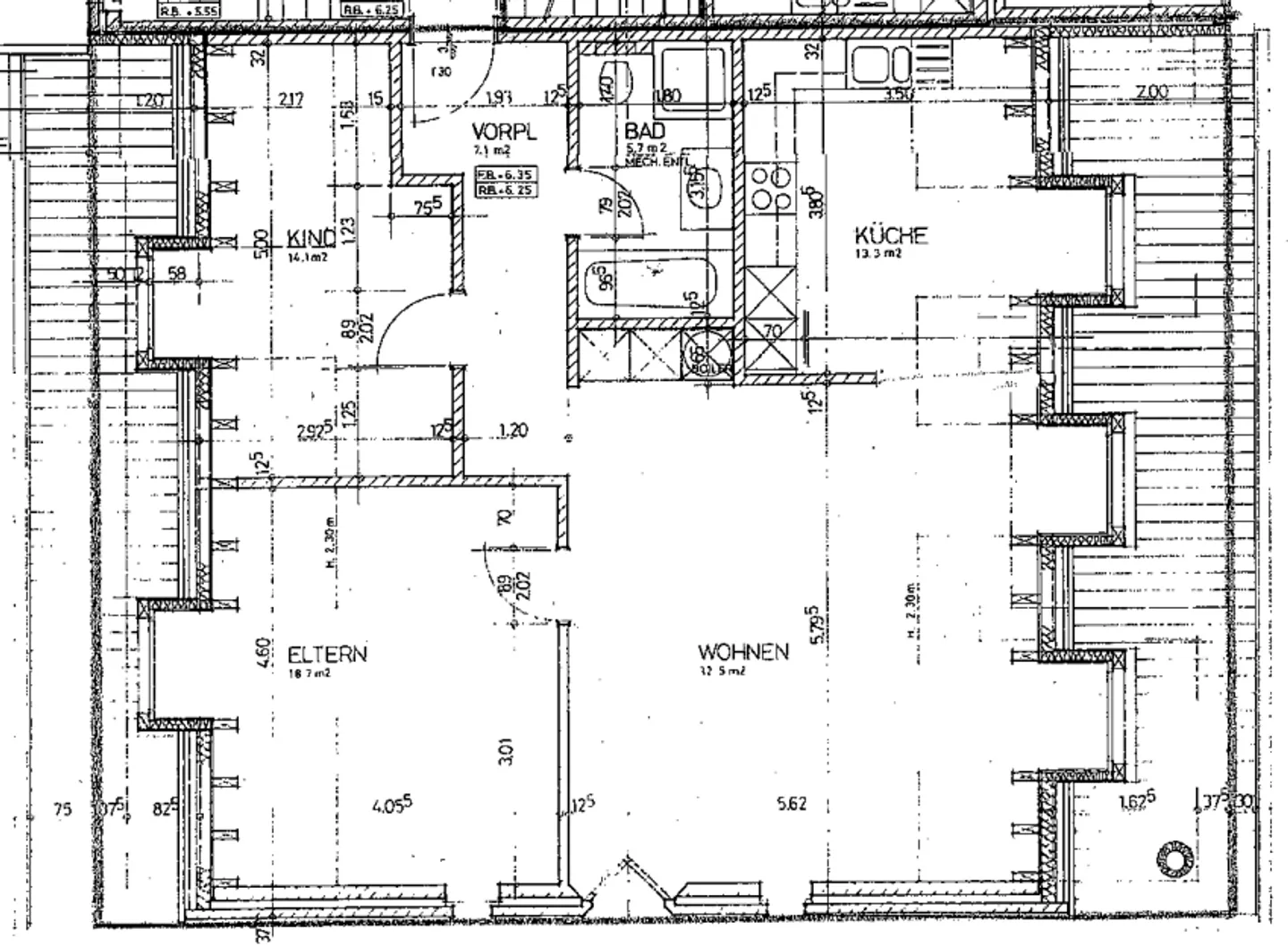
3.5 Zimmer-Wohnung im Dorfzentrum Zeglingen
Traumhafte 3.5-Zimmer-Wohnung in Zeglingen - Lichtdurchflutet, zentral und doch naturnah!
Inmitten der ruhigen, grünen Idylle von Zeglingen - und doch perfekt angebunden an Olten, Aarau und Sissach - erwartet Sie diese einzigartige 3.5-Zimmer-Wohnung im 2. Obergeschoss. Innerhalb von nur 30 Autominuten erreichen Sie das lebendige Basel, während Sie hier mitten im Paradies wohnen.
Ihre neue Wohnung: Helle Räume, origineller Grundriss und ländlicher Charme
- Lichtdurchflutet und grosszügig: Die übe...
Kostenaufstellung
- Nettokosten
- CHF 1’360
- Zusätzliche Kosten
- CHF 220
- Gesamtkosten
- CHF 1’360
Immobiliendetails
- Verfügbar ab
- Nach Vereinbarung
- Zimmer
- 3.5
- Baujahr
- 1990
- Wohnfläche
- 91 m²
- Etage
- 2.
- Geschosse
- 3



