Wohnung mieten - Mühlebachstrasse 4, 9230 Flawil
Warum Sie diese Immobilie lieben werden
Moderne Küche mit viel Stauraum
Grosser Balkon abgewandt zur Strasse
Helles Bad mit Doppelwaschbecken
Besichtigung vereinbaren
Besichtigung buchen
Wohnglück für familien und paare an ruhiger lage
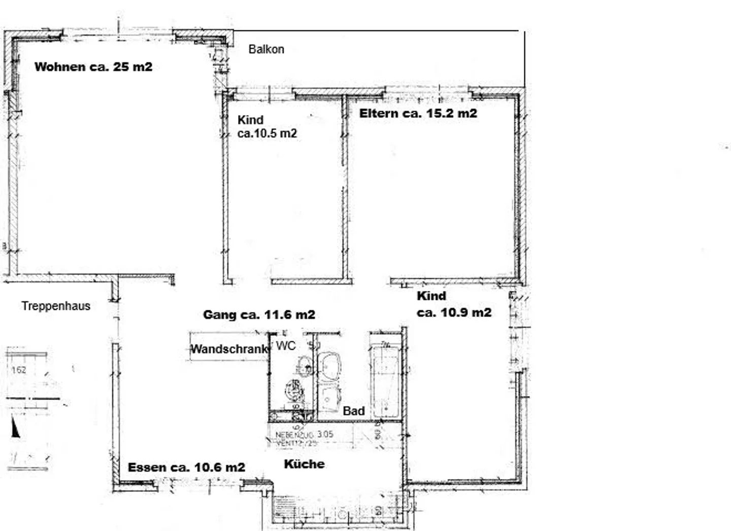
2022 sanierte 4.5 Zimmer-Wohnung mit Balkon in Flawil zu vermieten
Wir vermieten per sofort oder nach Vereinbarung diese attraktive Wohnung in Flawil. Einkaufsmöglichkeiten und Bushaltestellen befinden sich direkt vor der Haustüre. Der Grundriss lässt viel Spielraum für die individuelle Möblierung offen. Sie können die Wohnung genau nach Ihren Wünschen einrichten.
Ausstattung:
- Moderne Küche mit Glaskeramikherd, Geschirrspüler und Backofen, grosser Kühlschrank und viel Stauraum
- Wohn- und Schlafr...
Kostenaufstellung
- Nettokosten
- CHF 1’720
- Zusätzliche Kosten
- CHF 265
- Gesamtkosten
- CHF 1’720
Immobiliendetails
- Verfügbar ab
- Nach Vereinbarung
- Zimmer
- 4.5
- Renovierungsjahr
- 2021
- Wohnfläche
- 97 m²
- Etage
- 3.
- Geschosse
- 4



