Wohnung mieten - Moosäckerstrasse 4, 5442 Fislisbach
Warum Sie diese Immobilie lieben werden
Modernisierte Innenräume
Grosser gedeckter Balkon
Nahe Verkehrsanbindungen
Besichtigung vereinbaren
Besichtigung mit Enesa buchen
Wohnung mit traumhaften Blick ins Grüne
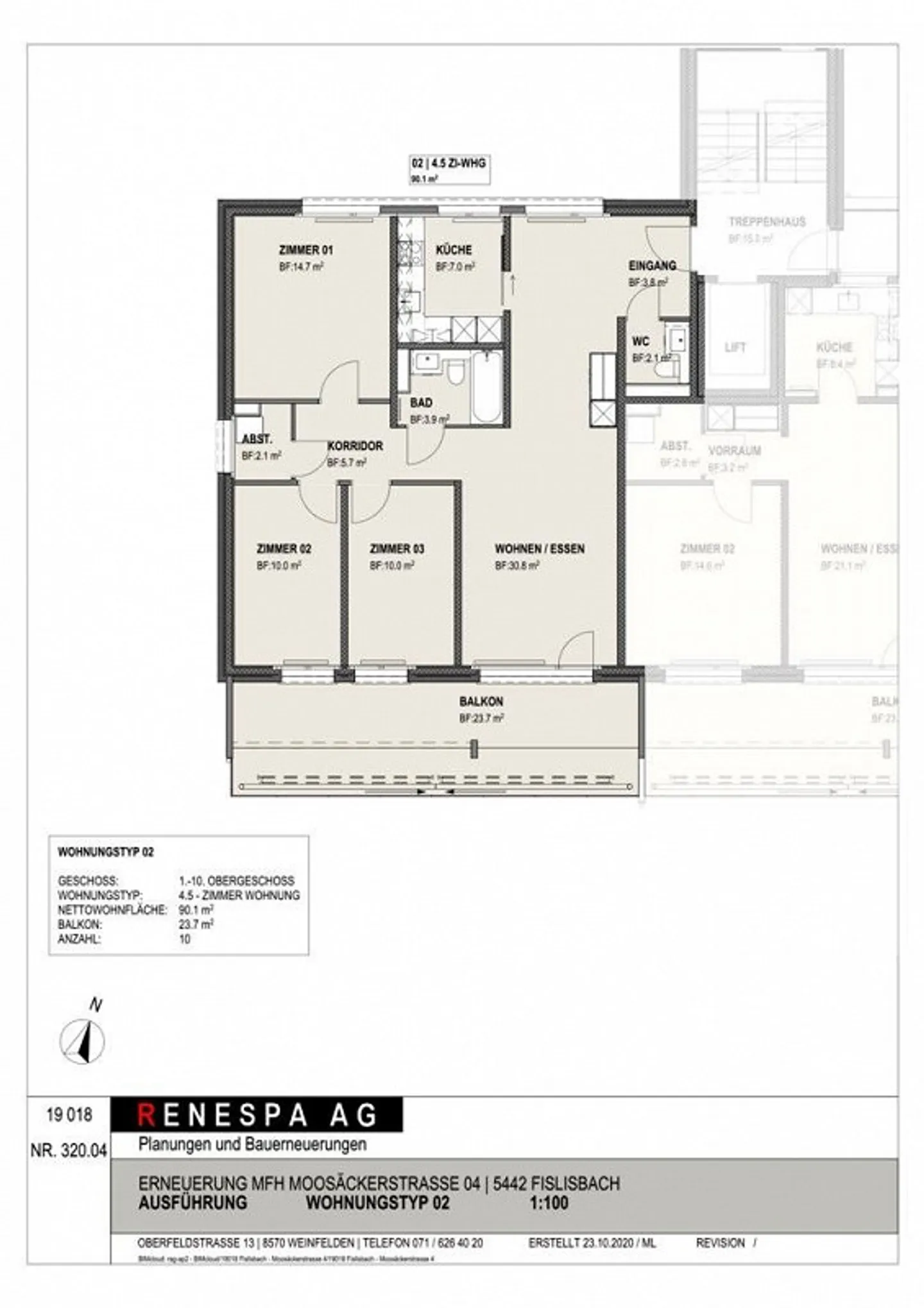
Nach umfassender Modernisierung wartet diese 4.5 Zimmerwohnung im 2. Obergeschoss mit ca. 90m2 darauf mit Leben erfüllt zu werden.
Die Wohnung verfügt über:
- Abgeschlossene Küche
- Schlafzimmer mit angrenzendem Ankleidezimmer
- Badezimmer mit Badewanne und Handtuchtrockner und Tageslicht
- Wohnzimmer mit Parkett
- Kellerabteil vorhanden
- Lift über sämtliche Etagen
- Grosser, gedeckter Balkon
Einkaufsmöglichkeiten und öffentliche Verkehrsmittel finden Sie in nächster Nähe.
Die Fotos können vom Miet...
Kostenaufstellung
- Nettokosten
- CHF 2’140
- Zusätzliche Kosten
- CHF 280
- Gesamtkosten
- CHF 2’140
Immobiliendetails
- Verfügbar ab
- Nach Vereinbarung
- Zimmer
- 4.5
- Baujahr
- 1971
- Wohnfläche
- 90 m²
- Etage
- 2.



