1 / 4

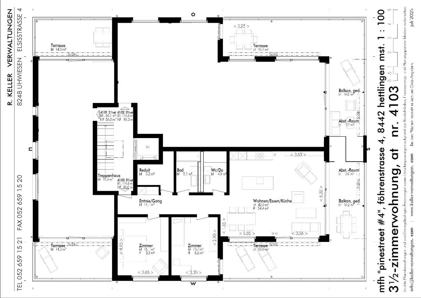
Penthouse mieten - Föhrenstrasse 4, 8442 Hettlingen

3.5 Zimmer • 98 m² • 1. Etage
CHF 2’825.-
CHF 346 m² / year

Warum Sie diese Immobilie lieben werden

Grosszügige 41m² Terrasse

SmartHome & PV-Anlage

Hochwertige Inselküche

Besichtigung vereinbaren

Besichtigung mit UrbanHome buchen

UrbanHome
UrbanHome

ERSTBEZUG von moderner 3½-Zimmer-Attika-Wohnung mit Bergsicht, Minergie zertifiziert mit PV-ZEV& SmartHome an ruhiger Lage

DAS DÜRFEN SIE ERWARTEN

- Top Wohnlage in Einfamilienhausquartier mit Bergsicht

- Grosszügige Terrasse mit Keramikbelag ~41m2, davon 14m2 überdacht

- Hochwertiger Eigentumswohnungsstandart mit SmartHome und PV-ZEV-Anlage

- Moderne, hochwertige Inselküche mit Granitabdeckung

- Badezimmer mit Wanne/Dusch-WC und WT mit Unterbaumöbel

- Dusche/WC mit Glastrennwand und WT mit Unterbaumö...

Immobiliendetails

Verfügbar ab
Nach Vereinbarung
Zimmer
3.5
Wohnfläche
98
Etage
1.

Agentur

UrbanHome
Ref: 7678461

Standort

Föhrenstrasse 4, 8442 Hettlingen

Quellen