Wohnung mieten - Brunnenmatt 4, 6064 Kerns
Warum Sie diese Immobilie lieben werden
Sonnige zentrale Lage
Grosser Balkon von 18 m²
Hochwertige Ausstattungen
Besichtigung vereinbaren
Besichtigung mit von buchen
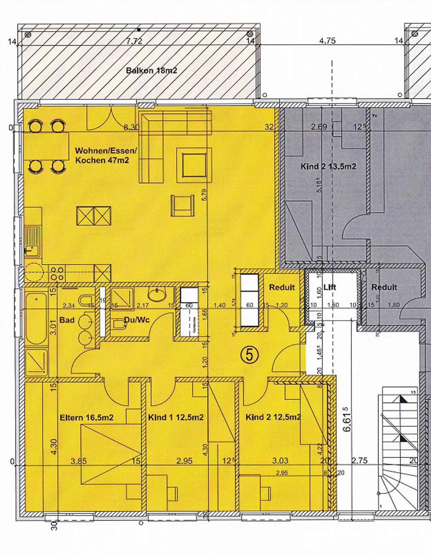
4.5 Zimmerwohnung in Kerns
4 1/2-Zimmer-Wohnung an zentraler Lage
Sonnige, ruhige Lage und trotzdem im Dorfzentrum.
Grosszügige, helle Wohnung mit sehr gutem Ausbaustandard:
Parkettboden im Wohnbereich/Korridor, Laminat in den Zimmern;
Küche mit Granitabdeckung, Glaskeramik u. Geschirrspüler; zwei Nasszellen; zahlreiche Einbauschränke; Reduit; grosser Balkon (18 m2).
Eigene Waschmaschine und Tumbler im Untergeschoss, Keller.
Ein Doppel-Autoabstellplatz in der Einstellhalle kann für zusätzliche Fr. 180.00/Mt. gemietet werden.
H...
Kostenaufstellung
- Nettokosten
- CHF 1’980
- Zusätzliche Kosten
- CHF 300
- Gesamtkosten
- CHF 1’980
Immobiliendetails
- Verfügbar ab
- Nach Vereinbarung
- Zimmer
- 4.5
- Wohnfläche
- 121 m²
- Etage
- 1.



