Wohnung mieten - Halta 38, 3186 Düdingen
Warum Sie diese Immobilie lieben werden
Private Waschsäule
Balkon mit Aussicht
Nah an öffentlichen Verkehrsmitteln
Besichtigung vereinbaren
Besichtigung mit Mme buchen
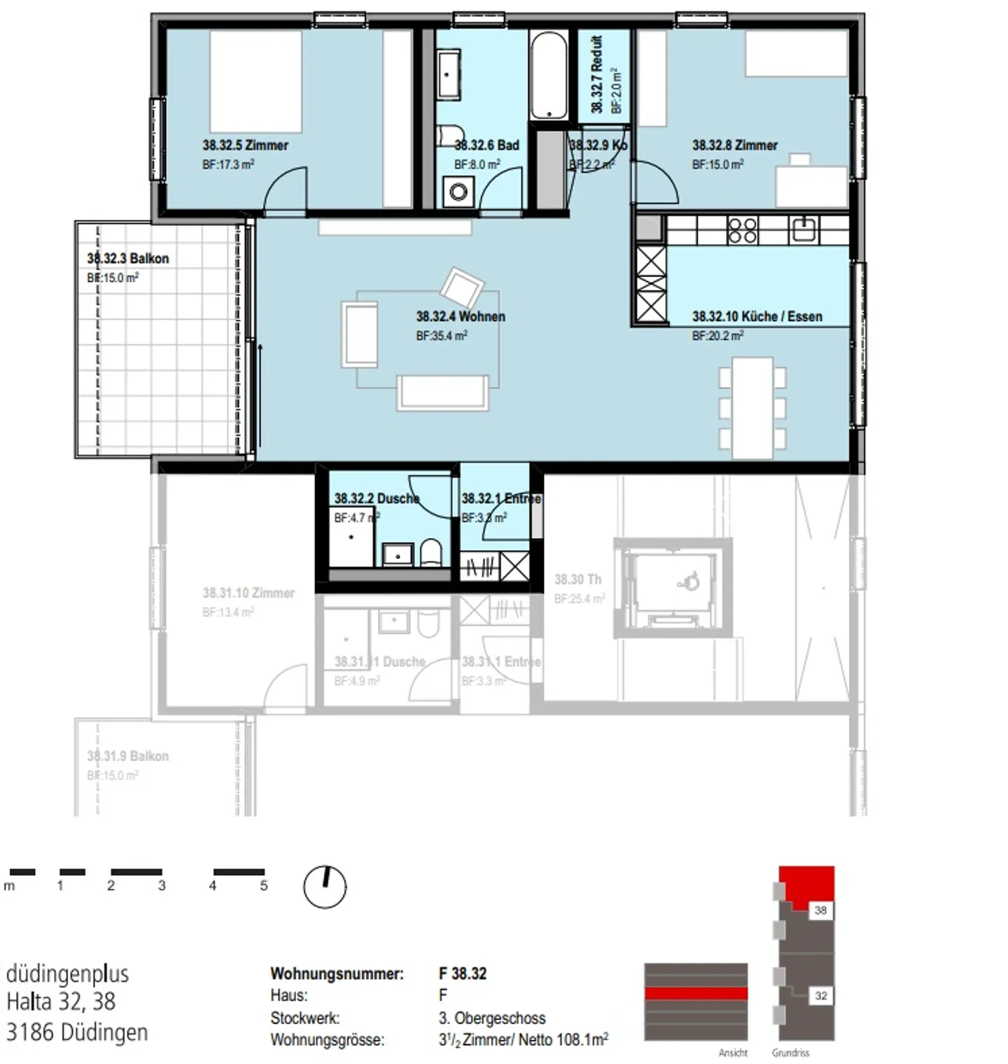
3,5-Zimmer-Wohnung
Modernes Wohnen in einem gemischten Stadt- und Naturgebiet
Wir bieten Ihnen neue, moderne und attraktive 2,5-Zimmer-Wohnungen nur wenige Meter vom Bahnhof Düdingen entfernt. Diese Häuser bestehen aus einer Eingangshalle, einer offenen Küche, einem Wohnzimmer, einem Schlafzimmer, einem Badezimmer und einem Balkon.
Dieses Haus ist auch mit einem grossen Keller ausgestattet
Das Gehäuse profitiert von einer privaten Waschsäule.
Tiefgaragenstellplätze sind ebenfalls zu mieten.
Nicht-kommerzielle Bild...
Kostenaufstellung
- Nettokosten
- CHF 2'165
- Zusätzliche Kosten
- CHF 300
- Gesamtkosten
- CHF 2'165
Immobiliendetails
- Verfügbar ab
- Nach Vereinbarung
- Zimmer
- 3.5
- Badezimmer
- 2
- Wohnfläche
- 108 m²



