Wohnung mieten - Avenue Blanc 38, 1202 Genève
Warum Sie diese Immobilie lieben werden
Voll ausgestattete Küche
Aufzug vorhanden
Inklusive Parkplatz
Besichtigung vereinbaren
Besichtigung buchen
3-zimmer-wohnung
3-Zimmer-Wohnung in den Nationen
Avenue Blanc 38
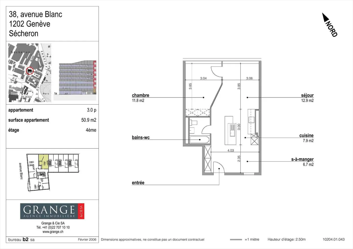
3-Zimmer-Wohnung im 4. Stock eines modernen Gebäudes in der Nähe von internationalen Organisationen und allen Annehmlichkeiten.
Diese Immobilie besteht aus einem Eingangsbereich mit Stauraum, ausgestatteter Küche, Wohnzimmer, Schlafzimmer und Badezimmer mit Toilette. Fläche von etwa 50 m2.
Das Gebäude ist mit einem Aufzug, einem Keller und einem im Mietpreis enthaltenen Parkplatz ausgestattet.
Immobiliendetails
- Verfügbar ab
- Nach Vereinbarung
- Zimmer
- 3
- Badezimmer
- 1
- Wohnfläche
- 51 m²



