Penthouse mieten - Wolfgangstrasse 37, 9014 St. Gallen
Warum Sie diese Immobilie lieben werden
Hohe Decken mit Balken
Sonniger Terrassenbalkon
Luxuriöser Rückzugsort
Besichtigung vereinbaren
Besichtigung mit Meier buchen
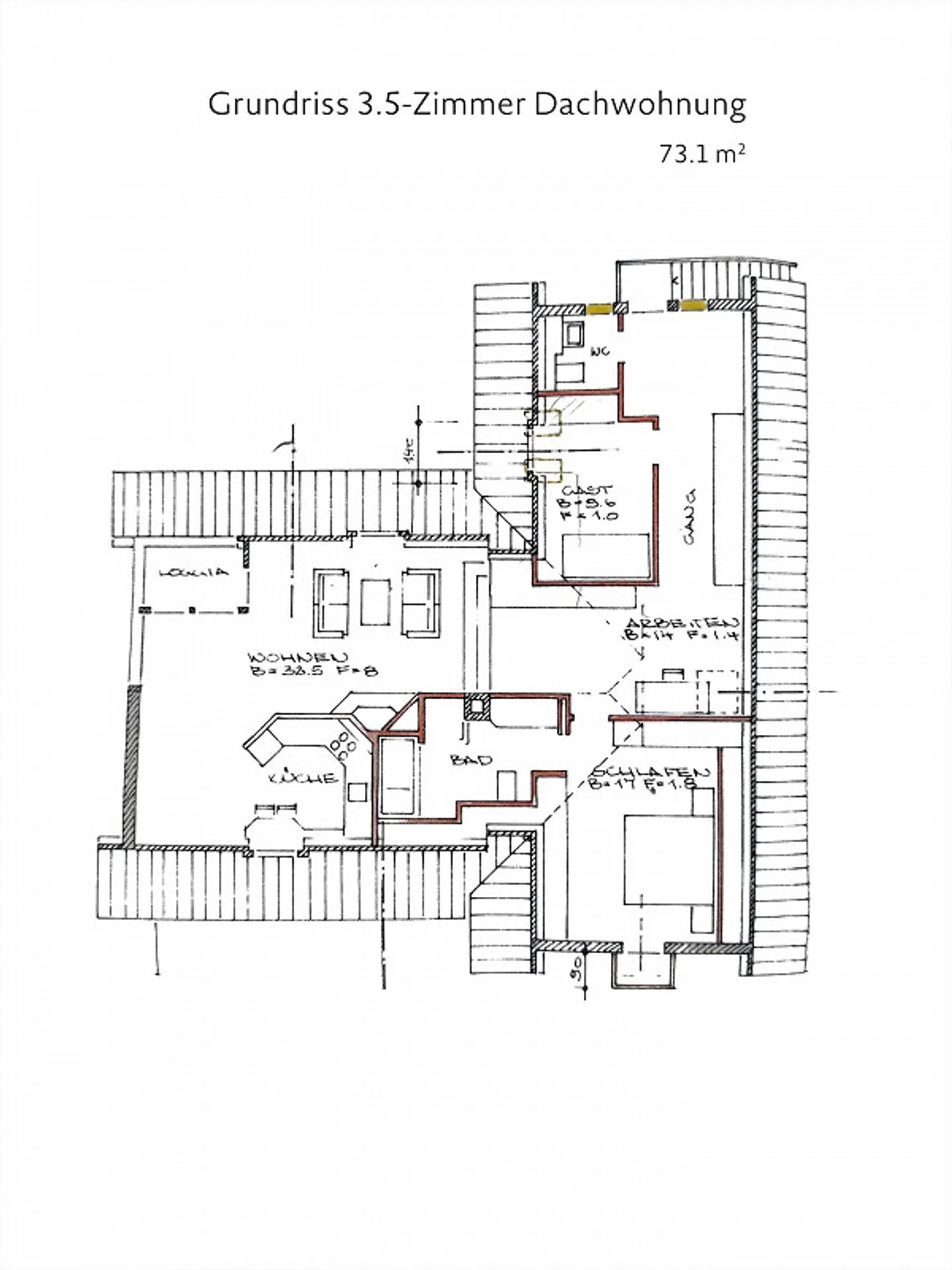
Aussergewöhnliche Dachwohnung mit Galerie-Charakter & Cheminée
Diese einzigartige 3.5-Zimmer-Dachwohnung an ruhiger Lage in St. Gallen vereint Grosszügigkeit, Individualität und stilvolles Wohnen auf besondere Weise.
Bereits beim Eintreten spürt man die aussergewöhnliche Architektur: hohe Räume, sichtbare Dachbalken und ein offener Wohnbereich schaffen ein luftiges, fast loftartiges Wohngefühl. Der hochwertige Parkettboden unterstreicht den warmen und zugleich modernen Charakter der Wohnung.
Das Herzstück bildet der lichtdurchflutete Wohn- und Essbereich mit ...
Kostenaufstellung
- Nettokosten
- CHF 1'850
- Zusätzliche Kosten
- CHF 350
- Gesamtkosten
- CHF 1'850
Immobiliendetails
- Verfügbar ab
- Nach Vereinbarung
- Zimmer
- 3.5
- Wohnfläche
- 73 m²
- Etage
- 9.



