Wohnung mieten - Wassermattweg 36, 3176 Neuenegg
Warum Sie diese Immobilie lieben werden
Sonniger Balkon
Moderne Einbauküche
Fussbodenheizung
Besichtigung vereinbaren
Besichtigung buchen
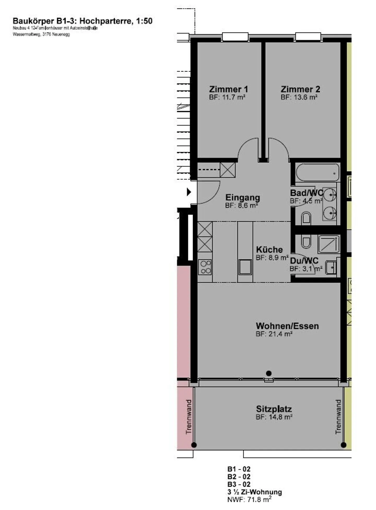
Moderne 3.5-Zimmerwohnung zu vermieten im ruhigen Quartier
Wir vermieten per 01.04.2026 oder nach Vereinbarung eine 3.5 Zimmer-Wohnung im 1. Obergeschoss. Die Wohnung bietet Ihnen folgende Vorzüge:
- sonniger Balkon
- grosszügiger und praktisch angelegter Grundriss
- moderne Einbauküche mit Natursteinabdeckung, Glaskeramikkochfeld, Umluft-Dunstabzug und Geschirrspüler
- Bad/WC mit Doppellavabo sowie separate Dusche/WC
- Eichenparkett in Wohnzimmer und Schlafräumen
- Entrée, Küche und Nasszellen mit Bodenplatten
- Fussbodenheizung: Raumthermostat in jedem Zimme...
Kostenaufstellung
- Nettokosten
- CHF 1’650
- Zusätzliche Kosten
- CHF 220
- Gesamtkosten
- CHF 1’650
Immobiliendetails
- Verfügbar ab
- Nach Vereinbarung
- Zimmer
- 3.5
- Baujahr
- 2016
- Wohnfläche
- 71 m²
- Etage
- 1.



