Wohnung mieten - St. Gallerstrasse 35a, 9500 Wil SG
Warum Sie diese Immobilie lieben werden
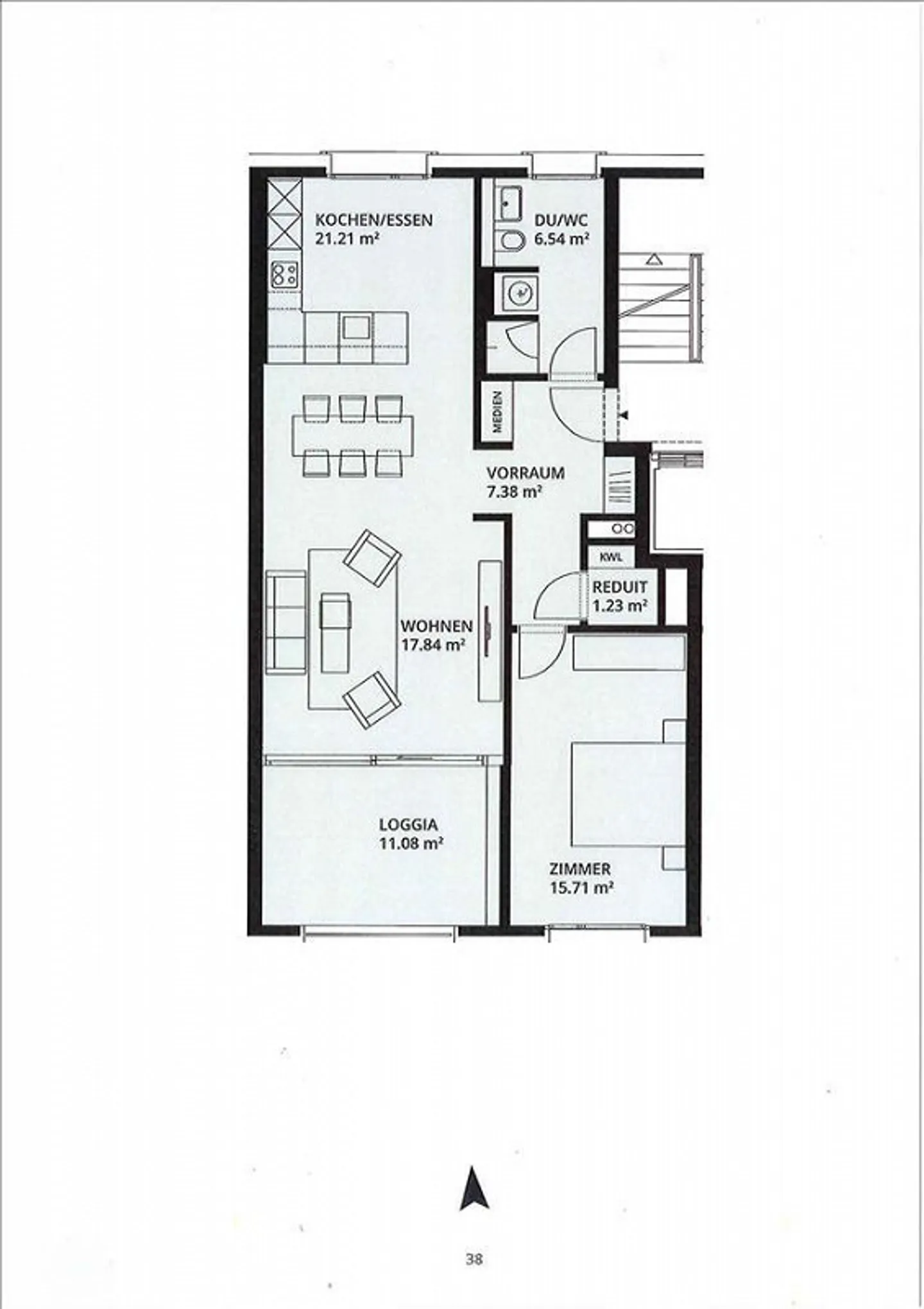
Offene Küche im Wohnbereich
Eigene Waschmaschine in der Wohnung
Loggia für Entspannung im Freien
Besichtigung vereinbaren
Besichtigung mit Wincasa buchen
Ruhiges und zentrales wohnen - hier endet ihre suche!
Wir vermieten per 01.02.2026 Ihr neues Zuhause mit folgenden Vorzügen:
- Liegenschaft in Minergiebauweise
- Offene Küche im Wohnbereich
- Glaskeramikherd sowie Geschirrspüler
- Bodenbeläge Wohnbereich Parkett
- Dusche/WC
- Eigene Waschmaschine/Tumbler in der Wohnung
- Reduit
- Loggia
- Lift
- Kellerabteil
- Dazu gemietet werden kann: Einstellplatz in Tiefgarage für CHF 130.00, E-Einstellplatz für CHF 150.00 und/oder Motorradplatz CHF 40.00/Mt
Sind Sie interessiert? Buchen Sie noch heute einen Besichtigung...
Kostenaufstellung
- Nettokosten
- CHF 1’650
- Zusätzliche Kosten
- CHF 210
- Gesamtkosten
- CHF 1’650
Immobiliendetails
- Verfügbar ab
- 01.02.2026
- Zimmer
- 2.5
- Baujahr
- 2017
- Wohnfläche
- 70 m²
- Etage
- 1.



