Wohnung mieten - Rue Du Lac 35, 1020 Renens VD
Warum Sie diese Immobilie lieben werden
Atemberaubender Seeblick
Nah an öffentlichen Verkehrsmitteln
Nähe zu Parks und Geschäften
Besichtigung vereinbaren
Besichtigung buchen
2-zimmer-wohnung
35 See Straße
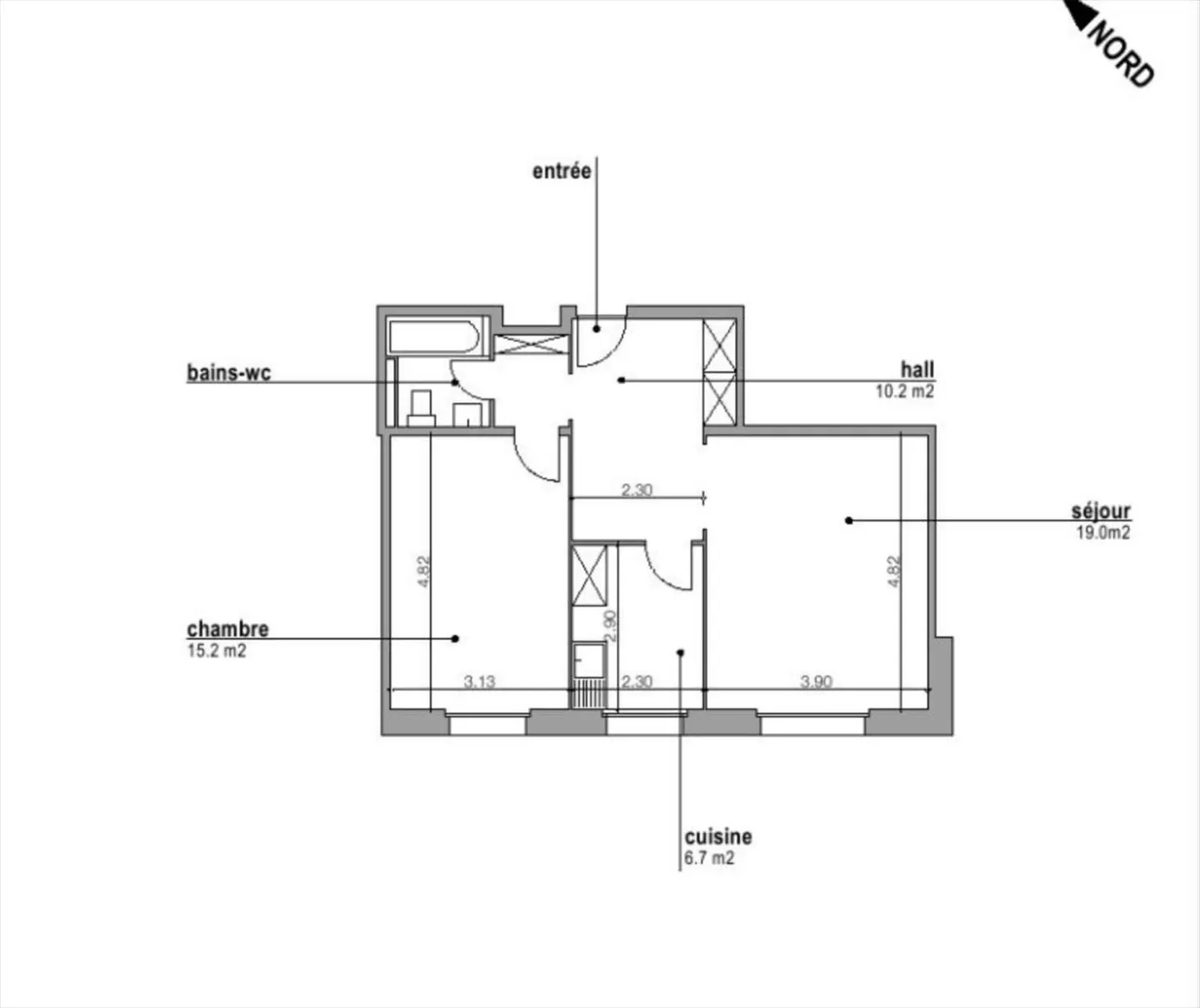
Gut gelegen, an der See Straße in Renens, profitiert diese Unterkunft von der Nähe zu Parks, Geschäften und öffentlichen Verkehrsmitteln sowie von einem schönen Blick auf den See.
In der Nähe der Universität, der U-Bahn und der Autobahn.
Es besteht aus einem Eingangsbereich, einem Wohnzimmer, einer eingerichteten und ausgestatteten Küche (Kühlschrank, Dunstabzugshaube, Herd), einem Schlafzimmer und einem Badezimmer mit WC.
Besichtigung am Donnerstag, den 23. Oktober um 14:00 Uhr, A...
Immobiliendetails
- Verfügbar ab
- Nach Vereinbarung
- Zimmer
- 2
- Badezimmer
- 1
- Wohnfläche
- 57 m²



