Wohnung mieten - Rue De L' Athénée 33, 1206 Genève
Warum Sie diese Immobilie lieben werden
Helles Apartment mit Kamin
In der Nähe von öffentlichen Verkehrsmitteln
Stilvolles Parkett und Stuck
Besichtigung vereinbaren
Besichtigung mit Muriel buchen
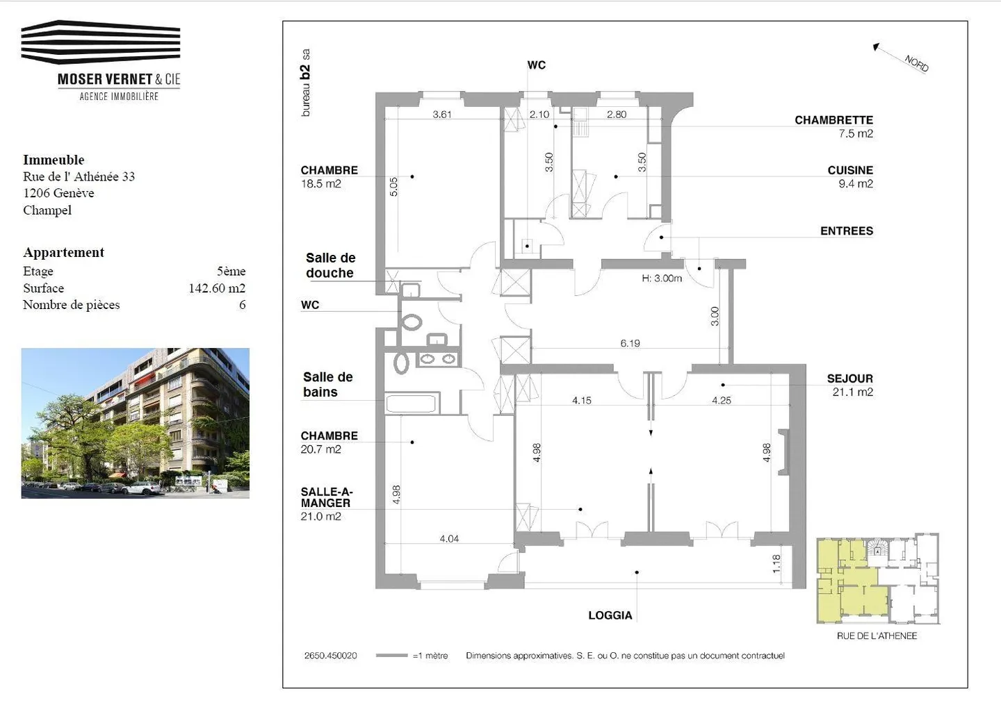
6-zimmer-wohnung
Wunderschöne Wohnung in Champel
In einem schönen hochwertigen Gebäude, in der Nähe des Bertrand-Parks, der russischen Kirche, Schulen, öffentlicher Verkehrsmittel (Champel CEVA-Bahnhof) und aller Annehmlichkeiten.
Diese sublime Wohnung, hell und lichtdurchflutet, mit schönen Parkettböden und Deckenverzierungen verteilt sich wie folgt :
Großer Eingangsbereich, doppeltes Empfangszimmer mit dekorativem Kamin, das auf die Loggia führt, ausgestattete Küche (Backofen, Kochplatten, Dunstabzugshaube, Kü...
Immobiliendetails
- Verfügbar ab
- Nach Vereinbarung
- Zimmer
- 6
- Badezimmer
- 2
- Wohnfläche
- 143 m²



