Wohnung mieten - Egelbergstrasse 33, 3006 Bern
Warum Sie diese Immobilie lieben werden
Ruhige Wohngegend
Moderne Küchenausstattung
Keine Kaution erforderlich
Besichtigung vereinbaren
Besichtigung mit Michèle buchen
MIETEN OHNE KAUTION - Klein, aber gepflegt und zentral gelegen
Verbinden Sie das Leben in einer ruhigen Wohnsiedlung mit den Vorteilen der Nähe zur Stadt. Im unmittelbaren Umfeld befinden sich auch die öffentlichen Verkehrsmittel sowie Einkaufsmöglichkeiten für den täglichen Bedarf.
Für Ihre Wohnqualität:
- Küche mit Geschirrspüler, Keramikkochfeld, Backofen
- Parkett- und Plattenböden
- Nasszelle mit Bad und WC
- Einbauschrank
- Balkon
- Lift
- Keller
- Dachterrasse zur Mitbenutzung
Bei diesem Mietobjekt müssen Sie nicht wie üblich drei Monatsmieten als Kau...
Kostenaufstellung
- Nettokosten
- CHF 945
- Zusätzliche Kosten
- CHF 125
- Gesamtkosten
- CHF 945
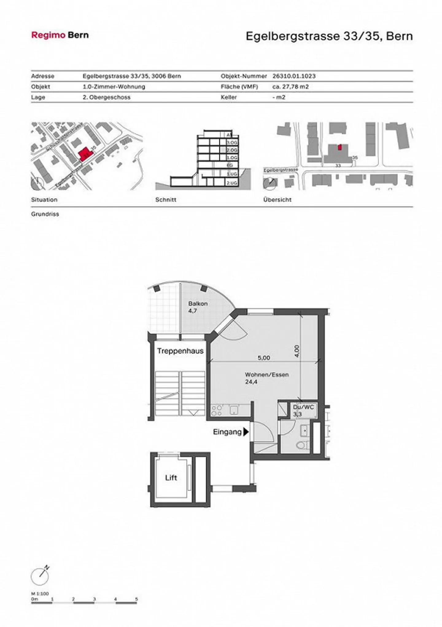
Immobiliendetails
- Verfügbar ab
- Nach Vereinbarung
- Zimmer
- 1
- Wohnfläche
- 27 m²
- Etage
- 2.



