Wohnung mieten - Kesselstrasse 31, 8200 Schaffhausen
Warum Sie diese Immobilie lieben werden
Sonniger Balkon zum Entspannen
Neuer Echtholz-Parkett
Nah an Geschäften und Verkehr
Besichtigung vereinbaren
Besichtigung buchen
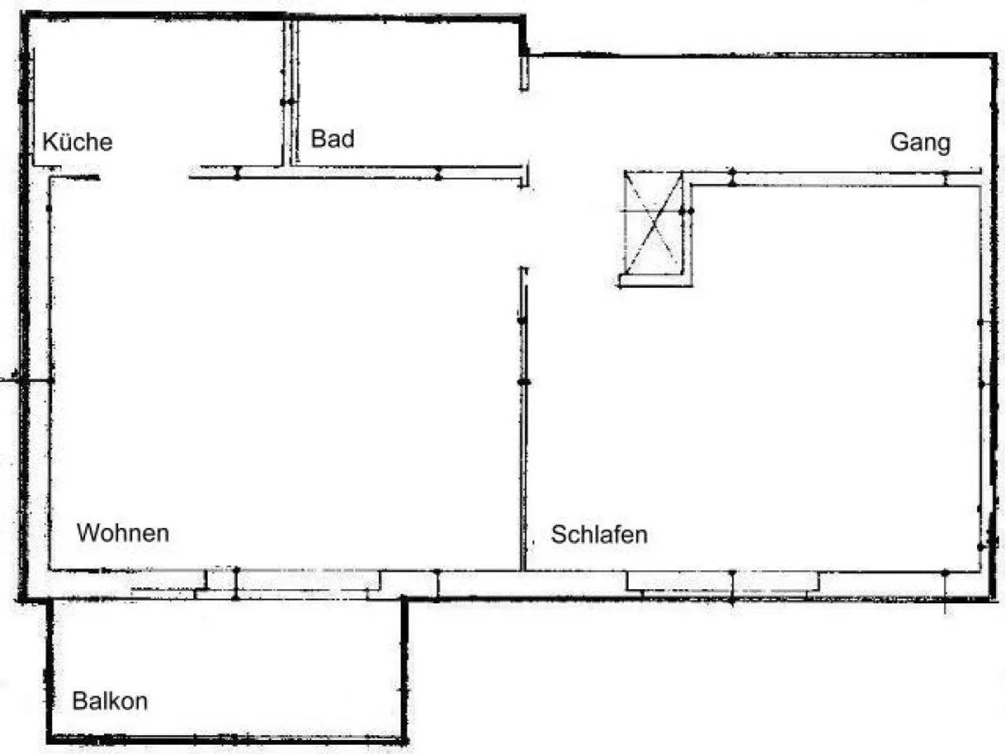
Gemütliche wohnung mit balkon in buchthalen
Gemütliche Wohnung mit sonnigem Balkon.
Neuer Echtholz-Parkett im Wohn- und Schlafzimmer. Zeitgemässe Küche und Bad.
Die Liegenschaft liegt im beliebte Buchthaler- / Grubenquartier. Diverse Einkaufsmöglichkeiten und Anschluss an die öffentlichen Verkehrsmittel in Gehdistanz. Naherhohlungsgebiet in der Nähe.
Wir freuen uns über Ihre Kontaktaufnahme.
Kostenaufstellung
- Nettokosten
- CHF 1’135
- Zusätzliche Kosten
- CHF 235
- Gesamtkosten
- CHF 1’135
Immobiliendetails
- Verfügbar ab
- Nach Vereinbarung
- Zimmer
- 2
- Baujahr
- 1967
- Etage
- EG



