Wohnung mieten - Bahnhofstrasse 30, 9443 Widnau
Warum Sie diese Immobilie lieben werden
Grosszügiger Balkon 10m²
Bodentiefe Glasfronten
Gehobene Küchenausstattung
Besichtigung vereinbaren
Besichtigung mit Brack buchen
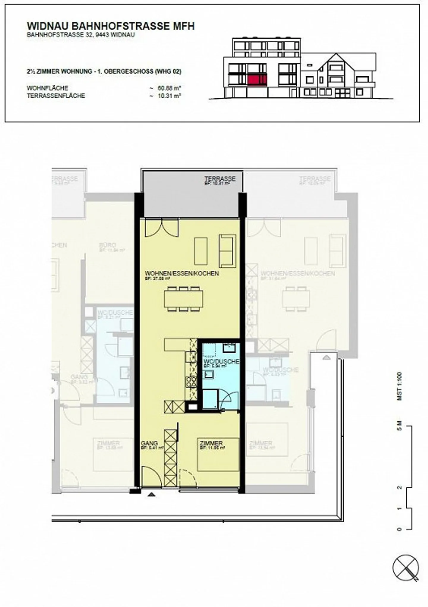
Eine helle 2.5 zimmer wohnung erwartet sie! ab 01.02.2026
Die Wohnung in moderner Architektur mitten im Zentrum bietet:
eine gehobene Ausstattung mit Wohn- und Essbereich
bodentiefe Glasfronten
eine Küche mit viel Stauraum
ein grosszügiger Balkon (10m2) verspricht schöne/gemütliche Stunden
Schlafzimmer mit angrenzender Nasszelle mit begehbarer Dusche und WC
Lift zu den Wohnungen
Ferner gehört zu dieser Wohnung ein Kellerabteil
Bei Bedarf stellen wir Ihnen für Fr. 100.-- einen gedeckten Autoabstellplatz zur Verfügung
Überzeugen Sie sich von den Vorzügen d...
Kostenaufstellung
- Nettokosten
- CHF 1’350
- Zusätzliche Kosten
- CHF 170
- Gesamtkosten
- CHF 1’350
Immobiliendetails
- Verfügbar ab
- Nach Vereinbarung
- Zimmer
- 2.5
- Baujahr
- 2014
- Wohnfläche
- 61 m²
- Etage
- 1.
- Geschosse
- 3



