Wohnung mieten - Schulstrasse 3, 8956 Killwangen
Warum Sie diese Immobilie lieben werden
Grosser gedeckter Balkon
Moderne offene Küche
Liftzugang von der Garage
Besichtigung vereinbaren
Besichtigung buchen
Wohnen im herzen von killwangen
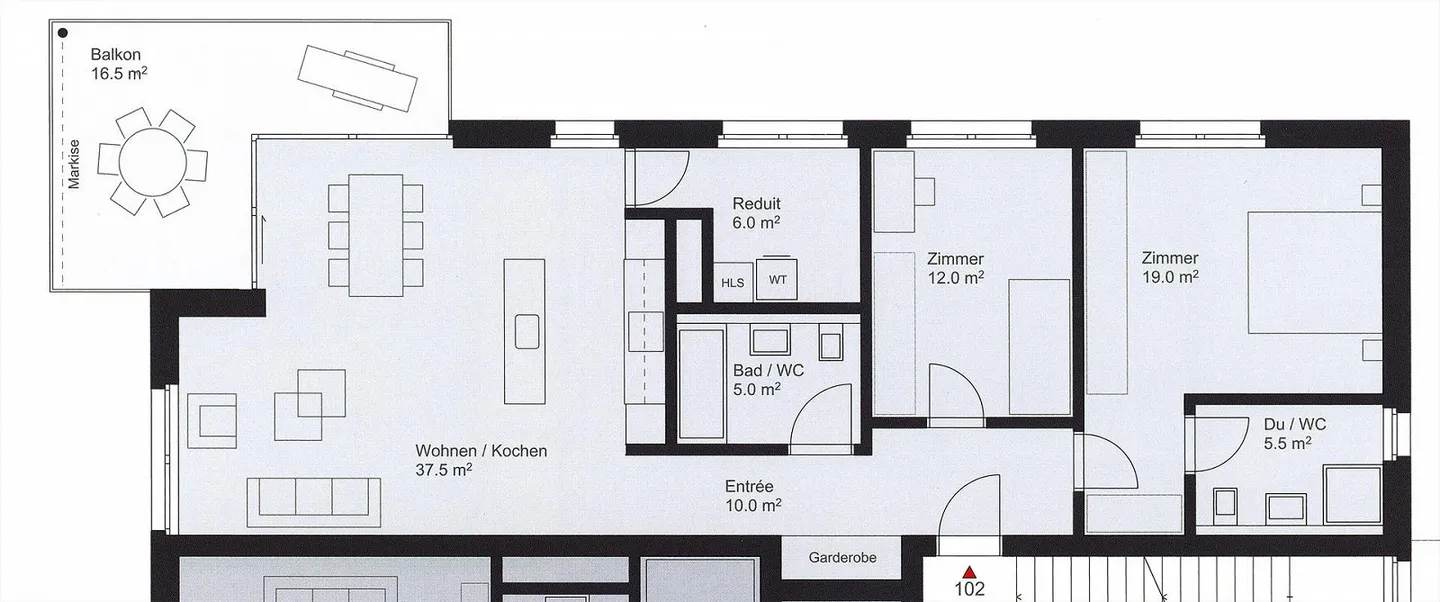
In einem familienfreundlichen Wohnquartier vermieten wir per 1. März 2026 diese schöne 3.5-Zimmerwohnung im 1. Obergeschoss. Die nach Südwest ausgerichtete Wohnung bietet eine hohe Wohnqualität mit guter Besonnung. Die Wohnung ist mit einem grossen gedeckten Balkon ausgestattet. Sie ist hindernisfrei über einen Lift vom Eingangsgeschoss und von der Tiefgarage zu erreichen.
Killwangen ist umgeben von Grün und Natur und liegt in einer idyllischen Wald- und Flusslandschaft, welche zu Spaziergängen s...
Kostenaufstellung
- Nettokosten
- CHF 2’450
- Zusätzliche Kosten
- CHF 300
- Gesamtkosten
- CHF 2’450
Immobiliendetails
- Verfügbar ab
- Nach Vereinbarung
- Zimmer
- 3.5
- Wohnfläche
- 113 m²
- Etage
- 1.



