Wohnung mieten - Im Rhytech 3, 8212 Neuhausen am Rheinfall
Warum Sie diese Immobilie lieben werden
Atemberaubender Rheinfallblick
Hochwertige Küchenausstattung
Geräumiger Wohnbereich
Besichtigung vereinbaren
Besichtigung buchen
Moderne wohnung mit exclusiver sicht auf den rheinfall
Im höchsten Hochhaus von Schaffhausen vermieten wir per 01.September 2025 oder nach Vereinbarung eine lichtdurchflutete 3.5 Zimmer Wohnung im 20. Stockwerk des <>.
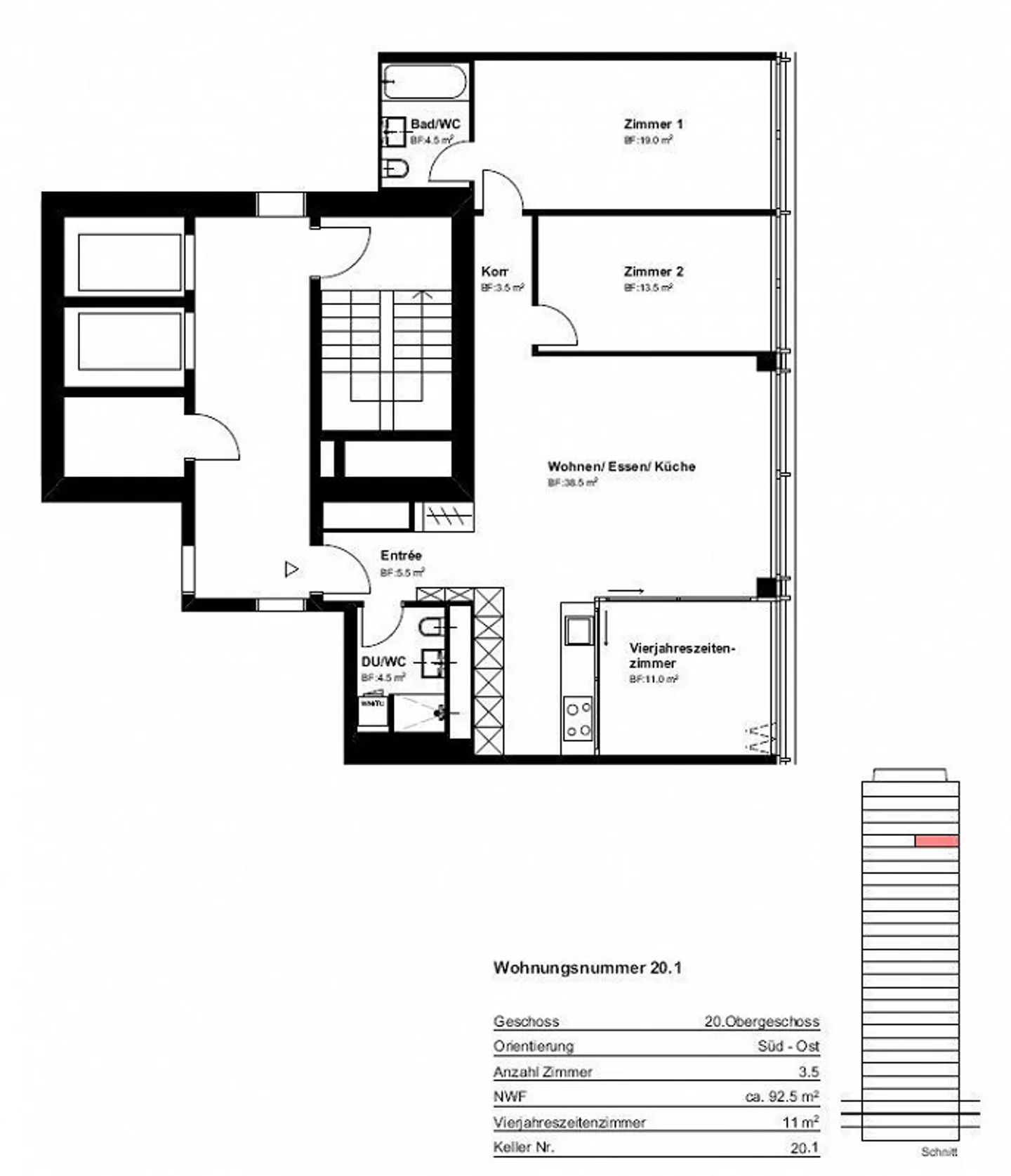
Die hier zur Miete angebotene Wohnung wurde im Eigentumsstandard erstellt und bietet Ihnen einen attraktiven Grundriss verteilt auf insgesamt 103.5m2 und einem hochwertigen Innenausbau. Grosszügige Schlafzimmer mit 14m2 bis 19m2, ein Wohn- und Essbereich mit 39m2, zwei Bäder mit 4.5m2 (DU/WC mit WM/TB und BAD/WC) sowie ein Vierja...
Kostenaufstellung
- Nettokosten
- CHF 2’800
- Zusätzliche Kosten
- CHF 240
- Gesamtkosten
- CHF 2’800
Immobiliendetails
- Verfügbar ab
- Nach Vereinbarung
- Zimmer
- 3.5
- Wohnfläche
- 103 m²
- Etage
- 20.



