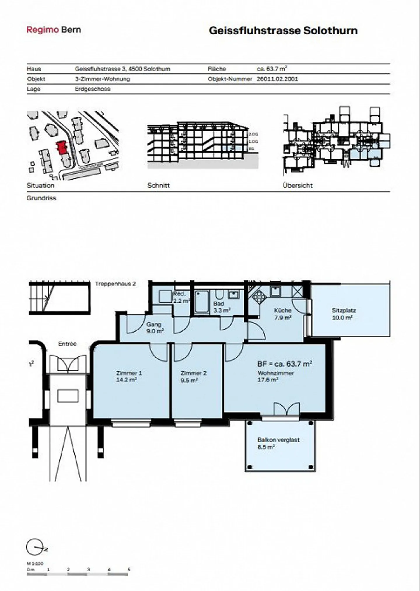
Wohnung mieten - Geissfluhstrasse 3, 4500 Solothurn
Warum Sie diese Immobilie lieben werden
Keine Kaution erforderlich
Moderne Küchenausstattung
Verglaster Balkon zum Entspannen
Besichtigung vereinbaren
Besichtigung mit Artan buchen
Mieten ohne kaution - gutes preis-leistungs-verhältnis in zentrumsnähe
Die Geissfluhstrasse befindet sich an ruhiger Lage im nördlichsten Teil von Solothurn. Das Ladendorf und auch der Bahnhof Langendorf sind zu Fuss in wenigen Minuten erreichbar. Die Altstadt Solothurn mit seinen zahlreichen Fachgeschäften, vielfältigen Restaurants, Kaffeehäusern und Bars und einem ansehnlichen Kulturangebot erreichen Sie ebenfalls zu Fuss, mit Bus oder Fahrrad.
Für Ihre Wohnqualität:
- Parkett- und Plattenböden
- abgeschlossene Küche mit Glaskeramikkochfeld und Geschirrspüler
- Na...
Kostenaufstellung
- Nettokosten
- CHF 1’450
- Zusätzliche Kosten
- CHF 250
- Gesamtkosten
- CHF 1’450
Immobiliendetails
- Verfügbar ab
- Nach Vereinbarung
- Zimmer
- 3
- Baujahr
- 1953
- Renovierungsjahr
- 2023
- Wohnfläche
- 64 m²
- Etage
- EG



