Wohnung mieten - Chemin Des Marguerites 3, 2350 Saignelégier
Warum Sie diese Immobilie lieben werden
Offene Küche zum Wohnzimmer
Balkon mit Aussicht
In der Nähe von Kita und Dienstleistungen
Besichtigung vereinbaren
Besichtigung buchen
«angepasste oder geschützte wohnungen von 65 m2»
Diese Residenz befindet sich in der Nähe der Kindertagesstätte/UAPE und der EMS des Franches-Montagnes. Es bietet viele Dienstleistungen in der Umgebung an und fördert ein generationenübergreifendes Umfeld.
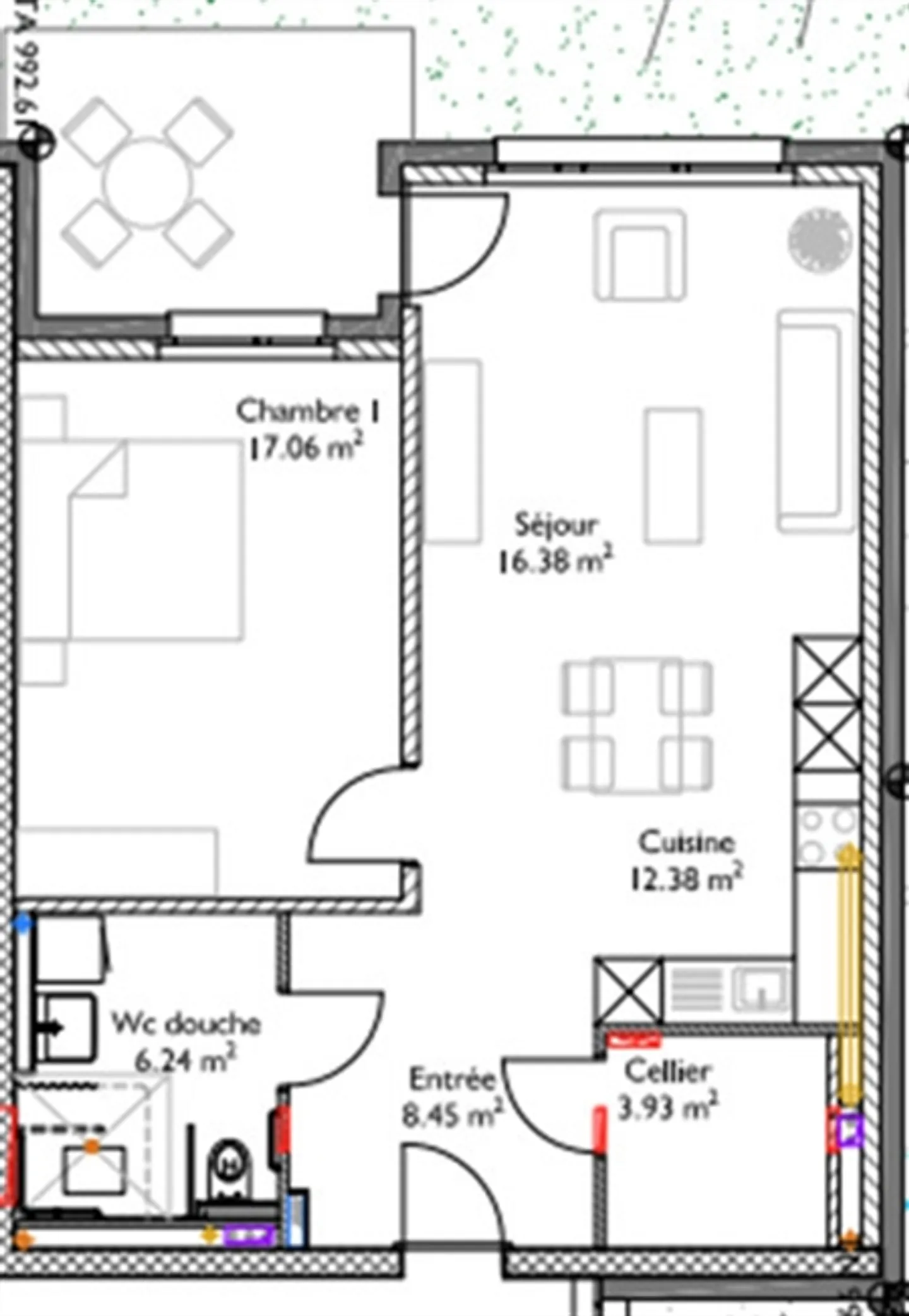
Angepasste 2,5-Zimmer-Wohnungen bestehend aus:
* Eine Eingangshalle von 8 m2
* Eine Einbauküche, die zum Wohnzimmer von 29 m2 offen ist
* Ein Balkon
* Ein Badezimmer mit italienischer Dusche von 6 m2
* Ein Schlafzimmer von 17 m2
* Ein 4 m2 großer Abstellraum
* Ein Keller von 5 m2 (auf der gleichen E...
Immobiliendetails
- Verfügbar ab
- Nach Vereinbarung
- Zimmer
- 2.5
- Baujahr
- 2024



