1 / 10

Wohnung mieten - Chemin Des Marguerites 3, 2350 Saignelégier

2.5 Zimmer • 64 m²
CHF 1’400.-
CHF 263 m² / year

Warum Sie diese Immobilie lieben werden

Geräumiger Wohnbereich von 29 m²

Stilvolle italienische Dusche

Privater Balkon zur Entspannung

Besichtigung vereinbaren

Besichtigung buchen

INFRA Immobilier SA
Diese Beschreibung wurde automatisch von Französisch übersetzt.

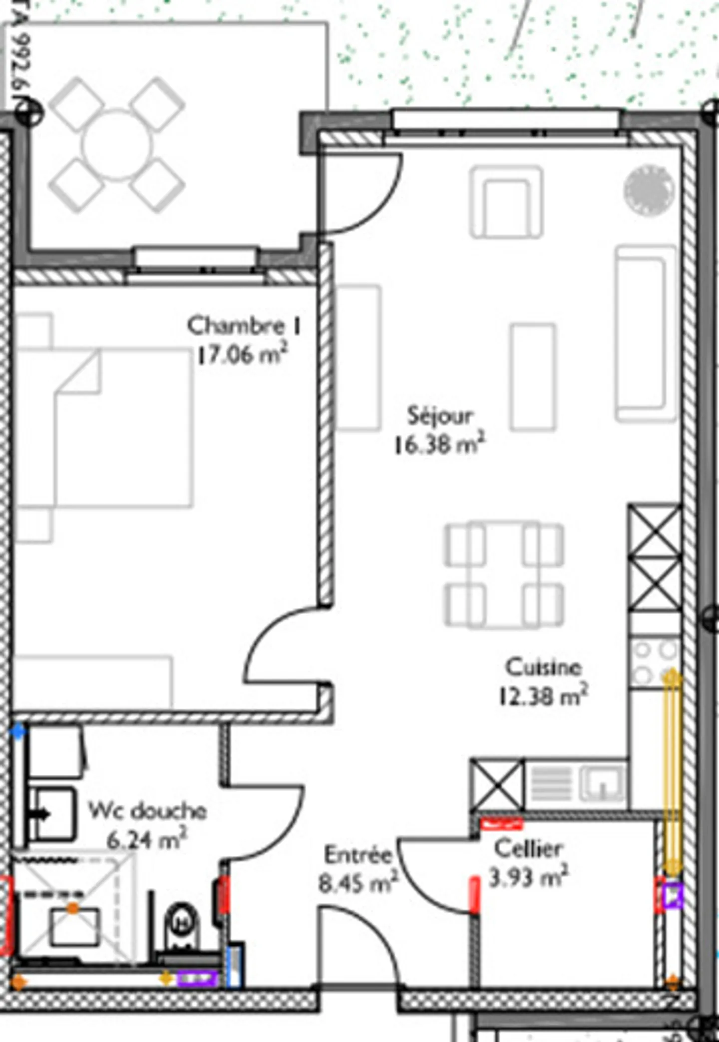
2,5-zimmer-wohnung

Wunderschöne 2,5-Zimmer-Wohnung im obersten Stockwerk

2,5-Zimmer-Wohnung bestehend aus :

* Ein Eingangsbereich von 8 m2

* Eine ausgestattete Küche, die zum Wohnzimmer von 29 m2 geöffnet ist

* Ein Balkon

* Ein Badezimmer mit italienischer Dusche von 6 m2

* Ein Schlafzimmer von 17 m2

* Ein Abstellraum von 4 m2

* Ein Keller von 5 m2 (auf derselben Etage wie die Wohnung)

* Möglichkeit, einen Außenparkplatz (überdacht/nicht überdacht/behindertengerecht) zu mieten (gegen Aufpreis)

Immobiliendetails

Verfügbar ab
Nach Vereinbarung
Zimmer
2.5
Badezimmer
1
Wohnfläche
64

Eigenschaften

Balkon
Parkplätze
Unverbaubare Aussicht
Lift
Neubau
Rollstuhlgerecht

Agentur

INFRA Immobilier SA
Online seit
06/08/2025
vor 2 Monaten

Standort

Chemin Des Marguerites 3, 2350 Saignelégier