Charmante Wohnung in Pieterlen
Warum Sie diese Immobilie lieben werden
Offene Küche mit Olivenfronten
Idyllische Natur in der Nähe
Ruhige zentrale Lage
Besichtigung vereinbaren
Besichtigung mit Melissa buchen
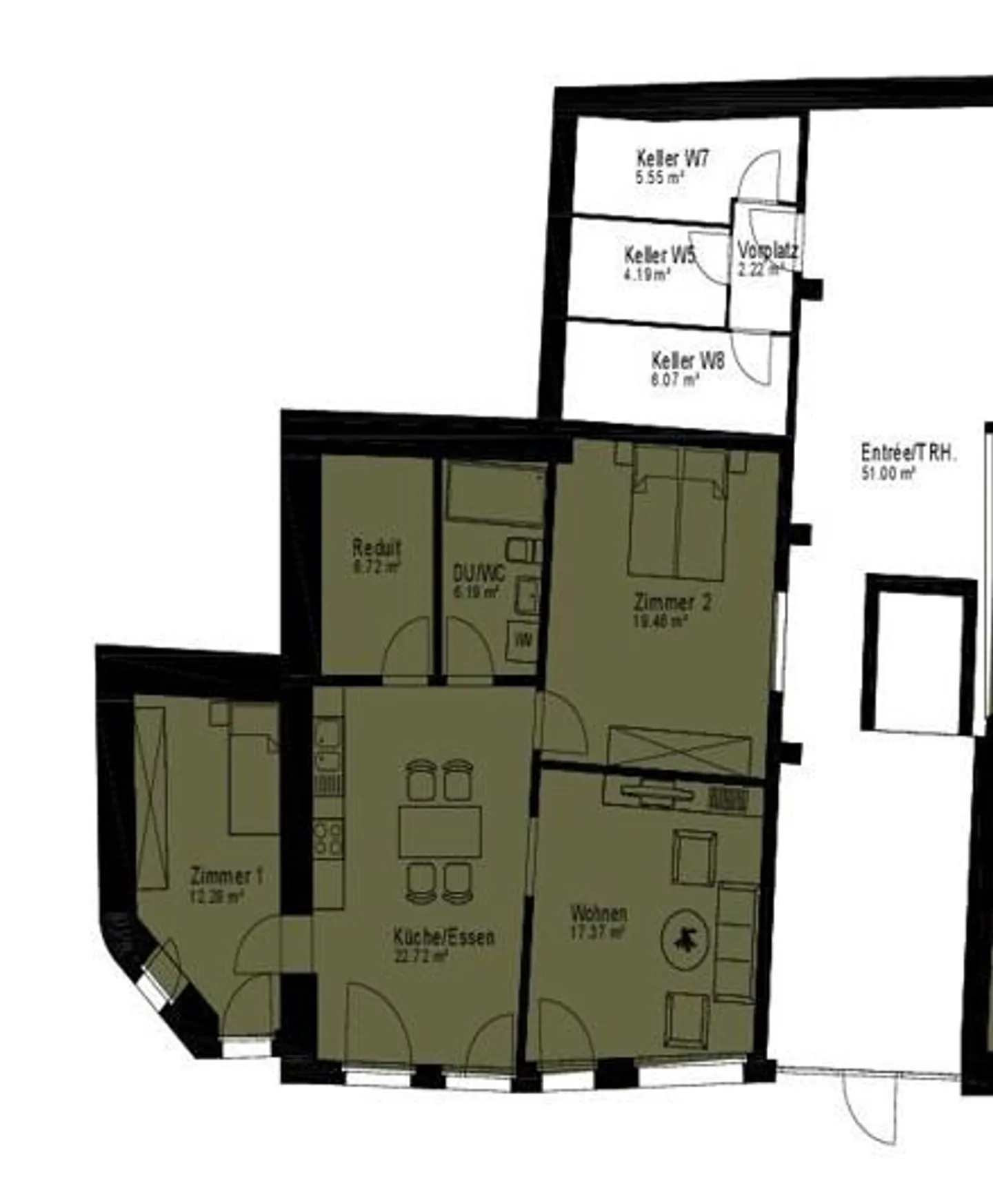
Per sofort oder nach Vereinbarung vermieten wir eine schöne 3.5-Zimmerwohnung in Pieterlen.
Lage
Pieterlen liegt herrlich eingebettet an der Sprachgrenze zwischen Jurasüdfuss und Büttenberg an der renaturierten Leugene mitten in einem Naherholungsgebiet. Bestens erschlossen mit dem öffentlichen Verkehr und Autobahnanschluss bietet Pieterlen attraktiven Wohn- und Arbeitsraum mit einer guten Infrastruktur und hoher Lebensqualität.
Die Liegenschaften befinden sich mitten im Dorfkern von Pieterlen. Div...
Kostenaufstellung
- Nettokosten
- CHF 1'790
- Zusätzliche Kosten
- CHF 200
- Gesamtkosten
- CHF 1'790
Immobiliendetails
- Verfügbar ab
- Nach Vereinbarung
- Zimmer
- 3.5
- Wohnfläche
- 87 m²
- Etage
- EG



