Wohnung mieten - Bahnhofstrasse 3, 9430 St. Margrethen SG
Warum Sie diese Immobilie lieben werden
Ausgezeichnete ÖV-Anbindung
Supermarkt im Gebäude
Flexible und geräumige Grundrisse
Besichtigung vereinbaren
Besichtigung mit Sandra buchen
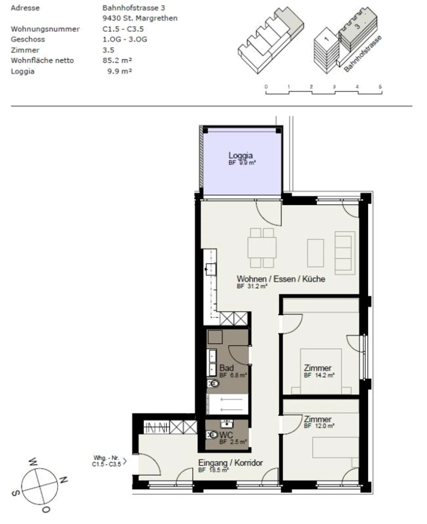
Traumwohnung in st. margrethen
Wohnen in St. Margrethen
immokanzlei AG - Ihr Partner für Immobilien.
Kauf, Verkauf, Vermietung, Verwaltung, Schätzung, Immobilienberatung.
Kompetent und fair mit besten Referenzen.
Die sehr zentral gelegene Überbauung an der Bahnhofstrasse 1 & 3 verfügt über grossartige 2½ und 3½ Zimmer-Wohnungen. Die auchwertigen Wohnungen eignen sich besonders für Einzelpersonen sowie Paare jeden Alters, die modernes Wohnen an gut erschlossener Lage schätzen.
Die intelligent durchdachten Grundrisse lassen Ihne...
Kostenaufstellung
- Nettokosten
- CHF 1’690
- Zusätzliche Kosten
- CHF 190
- Gesamtkosten
- CHF 1’690
Immobiliendetails
- Verfügbar ab
- 01.02.2026
- Zimmer
- 3.5
- Baujahr
- 2020
- Wohnfläche
- 82 m²
- Etage
- 1.



