Möblierte Wohnung mieten - Avenue Wendt 3, 1203 Genève
Warum Sie diese Immobilie lieben werden
Geschmackvoll eingerichtetes Interieur
Gemütliches Wohnzimmer mit TV
Balkonzugang vom Schlafzimmer
Besichtigung vereinbaren
Besichtigung buchen
Zu ergreifen! möblierte wohnung im stadtzentrum von genf!
In einem Gebäude in der Nähe aller Annehmlichkeiten und öffentlichen Verkehrsmittel gelegen, bieten wir Ihnen eine geschmackvoll eingerichtete Unterkunft, die bereit ist, Sie willkommen zu heißen.
Es besteht aus:
- Einem gemütlichen Wohnzimmer mit Flachbildschirm
- Einem geräumigen Schlafzimmer mit einem Doppelbett und Zugang zum Balkon
- Einer geschlossenen, eingerichteten und ausgestatteten Küche
- Einem Badezimmer
Sofort verfügbar.
Haben wir Ihr Interesse geweckt?
In diesem Fall zögern Sie nicht,...
Kostenaufstellung
- Nettokosten
- CHF 2’386
- Zusätzliche Kosten
- CHF 150
- Gesamtkosten
- CHF 2’386
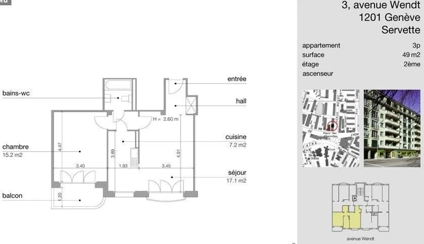
Immobiliendetails
- Verfügbar ab
- Nach Vereinbarung
- Zimmer
- 3
- Baujahr
- 1950
- Wohnfläche
- 49 m²
- Etage
- 2.



