Wohnung mieten - Allée Charles-Edouard-Guillaume 3, 1723 Marly
Warum Sie diese Immobilie lieben werden
Geräumiger Wohnbereich
Hochwertige Materialien
Zugang zu Gemeinschaftsräumen
Besichtigung vereinbaren
Besichtigung buchen
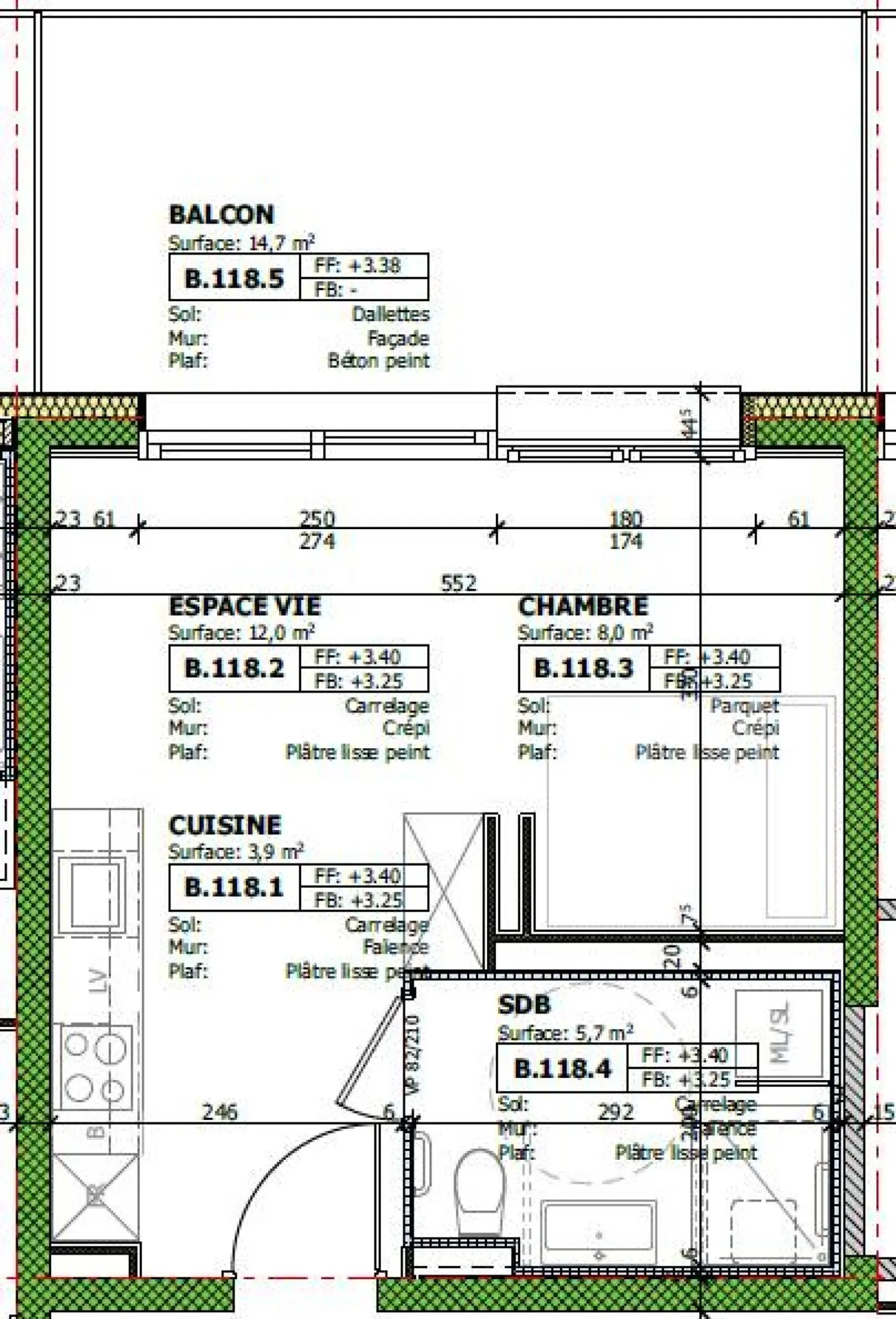
Prairie 1 - Senior - 1,5-Zimmer-Wohnung im 1. Stock
Im Herzen des Öko-Viertels in Marly: Neue seniorengerechte 1,5-Zimmer-Wohnung im 1. Stock mit Balkon
Wir bieten zur Miete in Gebäude B von Prairie 1 diese Seniorenwohnung mit 1,5 Zimmern im 2. Stock an, die sofort oder nach Vereinbarung verfügbar ist und wie folgt zusammengesetzt ist:
- Geräumiges Wohnzimmer
- Gerade, offene und voll ausgestattete Küche
- Halbgetrenntes Schlafzimmer
- Balkon von ca. 9 m2
- Duschbad mit Waschmaschine und Trockner
- Keller mit Steckdose
- 1 Busabonnement für Zone...
Kostenaufstellung
- Nettokosten
- CHF 1’025
- Zusätzliche Kosten
- CHF 75
- Gesamtkosten
- CHF 1’025
Immobiliendetails
- Verfügbar ab
- 01.01.1970
- Zimmer
- 1.5
- Baujahr
- 2025
- Wohnfläche
- 30 m²
- Nutzfläche
- 30 m²
- Etage
- 1.



