1 / 7

Wohnung mieten - Chriesmattweg 29, 8600 Dübendorf

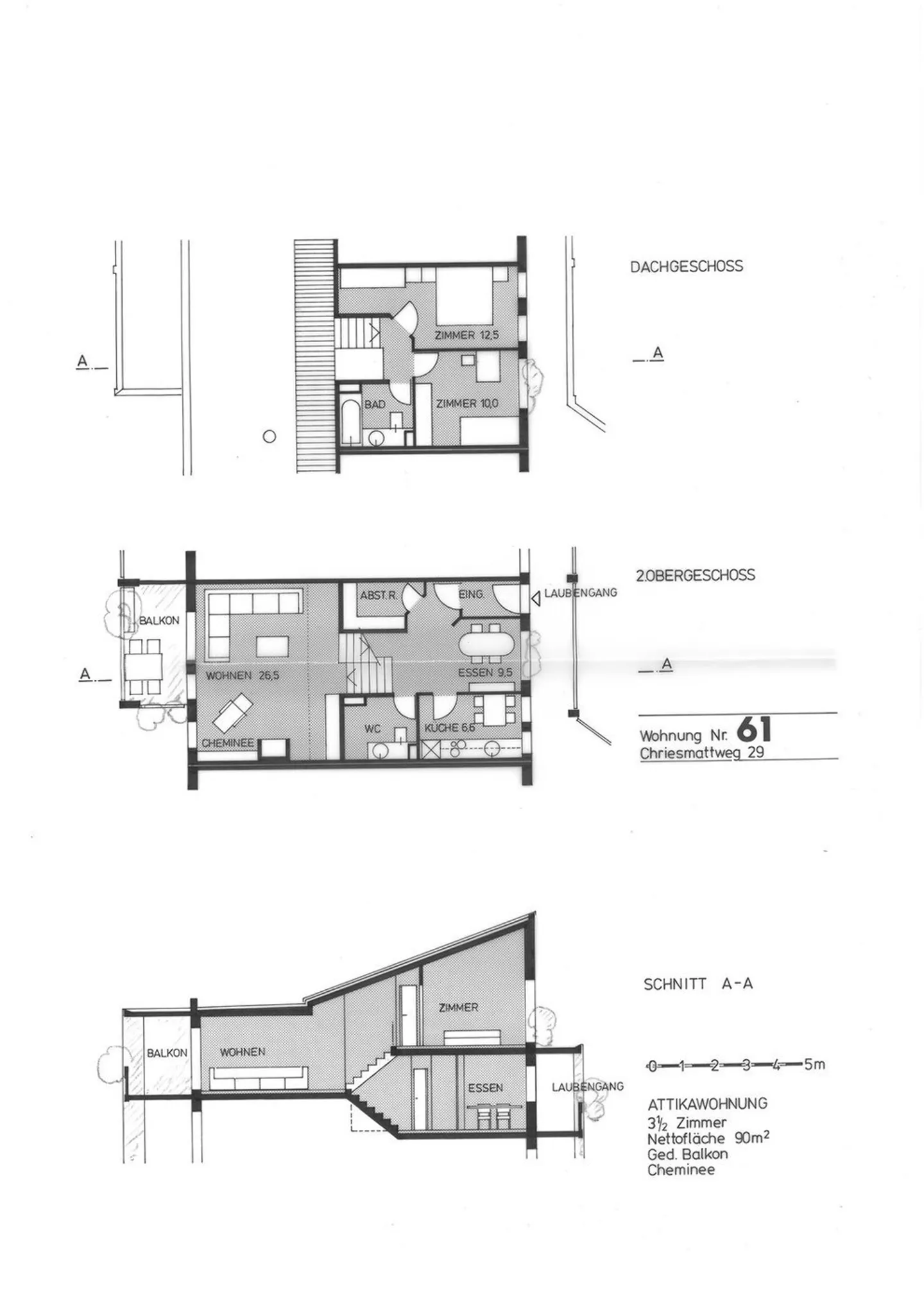
3.5 rooms • 90 m² • 1. Etage
CHF 2’409.-
CHF 321 m² / year

Warum Sie diese Immobilie lieben werden

Sonniger Balkon zur Entspannung

Ruhige Lage nahe der Natur

Moderne Küche mit Geschirrspüler

Besichtigung vereinbaren

Besichtigung buchen

Schöne, grosszügige 3.5 zimmerwohnung mit balkon an ruhiger lage

DÜBENDORF

Dübendorf ist die viertgrösste Gemeinde im Kanton Zürich und ist ausgezeichnet an den öffentlichen Verkehr erschlossen.

CHRIESMATTWEG 29, 8600 DÜBENDORF

Das Mehrfamilienhaus befindet sich in einer schönen Siedlung mit einem mediterranen Ambiente. Diese besticht mit ihrer verkehrsgünstigen, aber dennoch ruhigen Lage. Von der Strasse gut abgeschirmt befindet sich ein Naturschutzgebit mit Weiher und Glattufer. Ebenfalls zur Siedlung gehöt eine grosszügige Umgebung mit Spielplatz.

AUSBAU/BESON...

Immobiliendetails

Verfügbar ab
01.10.2025
Zimmer
3.5
Wohnfläche
90
Etage
1.

Eigenschaften

Garten
Garage
Balkon
Kamin
Haustiere erlaubt

Agentur

Immobilienkultur Verwaltungen AG
Immobilienkultur Verwaltungen AG
(32 reviews)
Ref: 2.8.1104

Standort

Chriesmattweg 29, 8600 Dübendorf